


138 775 ₽/м²
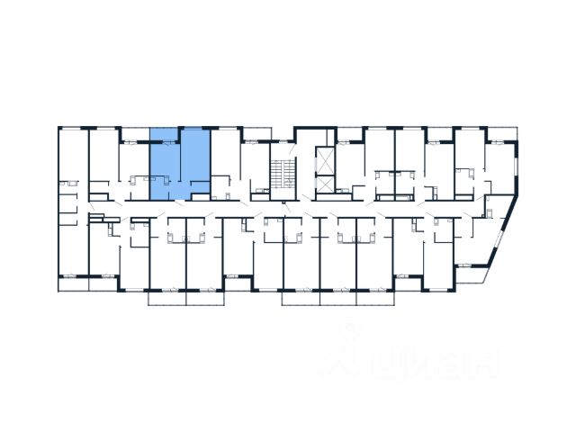
Цена со скидкой до 30% в прямой продаже от застройщика — только в этом месяце. Беспроцентная рассрочка. 1-к квартира в ЖК UP-квартал "Воронцовский" на 1-м этаже. Общая площадь 35,43. Без отделки. Up-квартал "Воронцовский" расположен в Новом Девяткино, молодом и наиболее активно развивающемся районе петербургской агломерации. Великолепно интегрированный в транспортную и социальную инфраструктуру Ленинградской области и Петербурга, этот район по праву можно считать оптимальным среди всех сателлитов города. При этом он сохранил преимущества загородных территорий поблизости расположены зеленые массивы, водоемы, определяющие живописный ландшафт, места для спокойного и активного отдыха. UP-квартал "Воронцовский" расположен ближе всех строящихся жилых комплексов к метро "Девяткино" - всего 15 минут пешком, и вы на месте. Рядом выезд на КАД удобно добираться до любой точки города. Или шоссе в сторону Токсово а это потрясающая природа Кавголовских озер, горноложные курорты и атмосфера лучшего загородного направления Петербурга.























































































































































