


199 429 ₽/м²
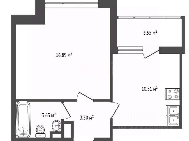
Арт. 110831438 Тихий и спокойный Московский район. Продается светлая квартира с отличной планировкой. О квартире: Кухня со встроенной техникой. Правильной планировки комната. Светлый санузел с ванной. Окна на две стороны (Юго-Восток и Северо-Запад) для максимального освещения. Тихая спальня с видом во двор, без соседних домов напротив. Квартира продается с мебелью и техникой — можно сразу заезжать и жить. Дом и инфраструктура: В близи магазины, аптеки, пункты выдачи. Чистый и ухоженный двор. Благоустроенная территория. Детская игровая площадка. Фитнес-центр рядом с домом. Школа и детский сад в пешей доступности. Пешая доступность к метро Московская и Парк Победы. О сделке: Обременений нет. Прямая продажа. Один собственник. Быстрый выход на сделку. Эта квартира — идеальный выбор для тех, кто ценит уют и комфорт. Свяжитесь со мной, чтобы узнать больше и договориться о просмотре в удобное для вас время. Номер объекта: #1/536984/23932
























































































