


210 666 ₽/м²
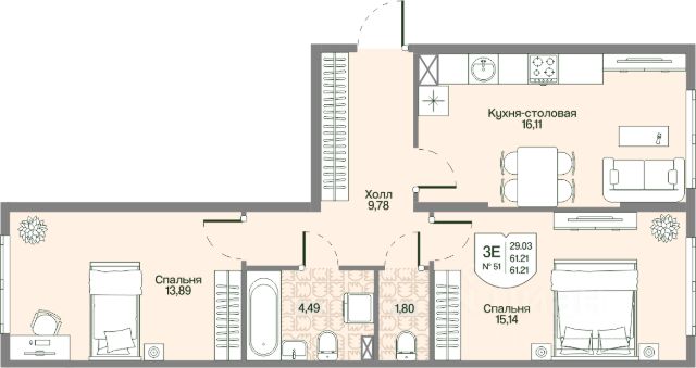
Загородный квартал бизнес-класса "Охтинские высоты" - это ваш новый образ жизни, в котором сбалансированы преимущества проживания на природе в сочетании с городскими сервисами. Квартал расположен рядом со всесезонным курортом Охта Парк, всего в 10 минутах от КАДа. В окружении расположены премиальные конные клубы, теннисные корты, банное пространство "Камыши". Также к услугам жителей легендарный лесной каток, теплый бассейн на открытом воздухе, SPA, рестораны и энотека Охта Парка, куда от квартала будет запущен шаттл только для жителей "Охтинских высот". Вокруг квартал рекреационная лесная зона невероятной красоты, буквально кислородная фабрика 24/7. Ко въезду ведет новая автомобильная дорога, специально построенная для комфорта будущих жителей "Охтинских высот". В первой очереди квартала уже реализуется детский сад на 120 мест. Запроектированы коммерческие помещения под аптеку, супермаркет, пункты выдачи заказов, кофейни и велнесс. Территория квартала безбарьерная. В каждом дворе будет выполнено уникальное благоустройство по авторскому проекту с детскими и спортивными площадками, местами для отдыха и активностей. Концепция озеленения выстроена по принципу "живописный двор круглый год". Любителям активного образа жизни особенно понравятся эксплуатируемые кровли с зонами для йоги и солярия, откуда открывается невероятный вид на зеленый лес, раскинувшийся вокруг квартала. Дворы закрытые, без машин. Безопасность жителей обеспечивает система круглосуточного наблюдения и охрана. Входные группы светопрозрачные, с увеличенными окнами "от колена". Вход с уровня земли. Жители всегда видят, что происходит во дворе и в парадной. МОПы отделами качественными материалами с фактурой дерева и камня. В каждой парадной современные грузопассажирские лифты, отдельно выделены колясочные и велосипедные. Квартал малоэтажный, всего 4 этажа. Высота потолков при этом от 3 м и выше. Квартиры спроектированы таким образом, чтобы закрыть потребности в ежедневном комфортном проживании для семей любого состава. В квартирах: • Живописные патио на первых этажах • Зоны для организации хранения • Мастер-спальни • Комнаты правильной формы • Просторные кухни-гостиные с комфортным зонированием • Гардеробные • Дополнительные санузлы • Увеличенные окна 2х2 м • Система управления комфортом в каждой квартире ("Умный дом") • Подготовка под установку кондиционера • Балконы и лоджии Все квартиры сдаются с отделкой white-box и Системой управления комфортом (умный дом). На выбор можно заказать чистовую отделку, которая представлена в двух вариантах.





































































































































