


177 660 ₽/м²
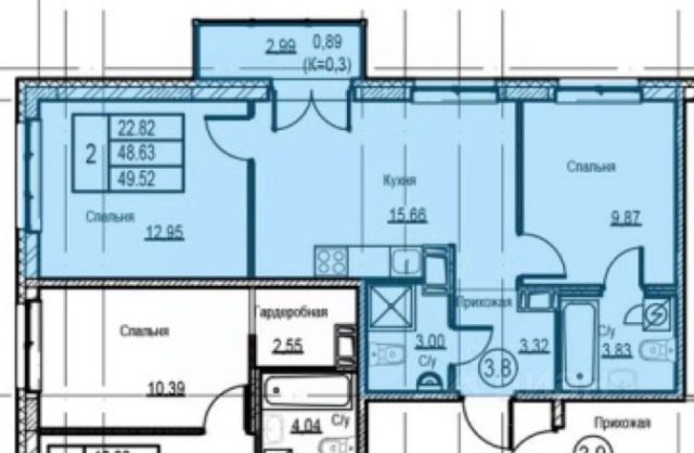
"Ясно.Янино" комфортный современный микрорайон, построенный по принципам нового урбанизма. Он состоит из домов высотой 8 этажей, выполненных в едином лаконичном стиле, характерном скандинавской архитектуре. Застройка ведется в шесть очередей, две из которых уже построены и заселены. "Ясно.Янино" проект комплексного освоения территории. Вся необходимая инфраструктура представлена внутри квартала. Здесь уже работают отделения детской и взрослой поликлиники, в которых принимают по полисам ОМС, детский развивающий центр и частный детский сад, пожарное депо, магазины и кафе шаговой доступности, по соседству функционирует конный клуб "Исток". Силами застройщика ГК "КВС" возводится муниципальный детский сад и уже получено согласование проектов еще двух детсадов и школы. Янино самый ближайший пригород Санкт-Петербурга. Дорога до станции метро "Ладожская" или "Проспект Большевиков" займет всего 20 минут. Остановка общественного транспорта есть прямо на территории "Ясно.Янино", кро


































































































































