294 078 ₽/м²
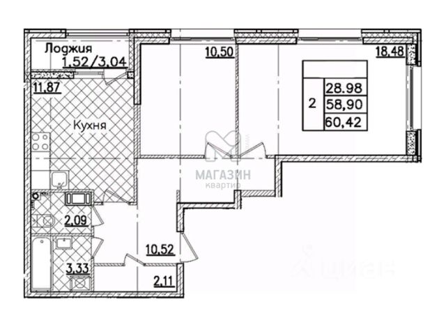
Продаётся 2к.кв. в ЖК БелАрт от застройщика Холдинг "РСТИ" (Росстройинвест). Квартира находится в 22 этажном доме, в Корпус 2 на 20 этаже. Общая площадь квартиры 77,30 кв.м. ЖК "БелАрт" — современный квартал комфорт-класса, расположенный в Калининском районе Санкт-Петербурга, в шаговой доступности от станции метро "Лесная". В состав проекта входят пять корпусов переменной этажности. Уникальная архитектура, выверенная геометрия фасадов, грамотное зонирование общественных пространств и придомовой территории, продуманные планировки квартир. Особое внимание уделено обустройству мест общего пользования: в парадных появятся зоны для отдыха и помещения для хранения велосипедов и колясок. В закрытых благоустроенных дворах будут обустроены детские площадки, зоны для отдыха. Украшением квартала станет променад протяженностью почти 300 метров с фруктовым садом. На первых этажах домов жилого комплекса "БелАрт" откроются продуктовые магазины, пекарни, салоны красоты. В стилобатной части домов спроектированы подземные паркинги. ЖК строится на Полюстровском проспекте. До станции метро "Лесная" 1,4 км, а до Финляндского вокзала 4,5 км. Ближайшие остановки общественного транспорта всего в 50 метрах от комплекса. Выезд на КАД находится в 7,5 км, на 3СД в 9,5 км, а до центра города всего 9 км. "БелАрт" расположен в непосредственной близости от крупных транспортных магистралей: Полюстровского проспекта, проспекта Маршала Блюхера, Большого Сампсониевского проспекта, Кантемировской улицы, Ушаковской и Выборгской набережных. Калининский район Санкт-Петербурга — развитый район с налаженной инфраструктурой. На расстоянии 12 км от квартала работают более 10 детских садов и 7 школ. Близость к метро и центру делает доступными лучшие учебные заведения. В окружении комплекса уже работают различные магазины, медицинские клиники и многое другое. Рядом со станцией метро "Лесная" расположен торгово-развлекательный комплекс "Европолис". 2-комнатная квартира на проспекте Маршала Блюхера в Санкт-Петербурге.






























































































