


168 768 ₽/м²
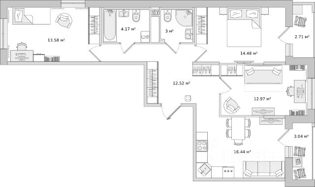
Продается уютная, семейная 3-комнатная квартира от застройщика в жилом комплексе "Город звезд" в новом городе на правом берегу Невы. До метро можно добраться на транспорте всего за 13 минут. Удобная, классическая, функциональная европланировка, большая кухня-гостиная 17.81 м², вместительная прихожая 9.54 м². Общая площадь квартиры - 77.03 м², жилая 42.45 м², высота потолка 2.75 м. Квартира продается с отделкой "NORD LINE SILVER". Что особенного в ЖК "Город звезд"? • Инновационный Лицей Setl с оригинальной архитектурной концепцией и уникальной образовательной средой • Невский лесопарк под окнами - всегда свежий воздух и полноценный отдых на природе • Четыре тематические площади отдыха с разнообразным благоустройством • Аллея Звёзд - променад протяженностью 5 км с ландшафтным озеленением, зонами отдыха и велодорожкой • Выход на набережную реки Утки, где можно порыбачить или взять напрокат лодку • Единая входная группа с ресепшен и подземный паркинг Продам 3-комнатную квартиру в новостройке в деревне Новосаратовка Всеволожского района.






































































