


1 100 000 ₽/м²
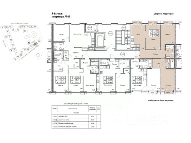
Клубный дом находится в восточной части Крестовского острова, где расположены преимущественно фешенебельные дома, что обеспечивает высокий статус окружения. Дом построен по проекту архитектурного бюро DBA в неоклассическом стиле. Фасады дома выполнены из светлого натурального камня и архитектурного бетона, с декоративными металлическими элементами. Свободные планировки квартир большой площади с панорамными окнами и французскими балконами идеальное пространство для воплощения самых смелых дизайнерских решений Проект объединяет 58 президенций: квартиры и апартаменты площадью 130 - 292 кв. м,. таун-виллы с отдельным входом и собственным зеленым патио, пентхаусы с террасами 160 - 500 кв. м. Высота потолков помещений варьируется 3,15 - 3,3 м. В комплексе предусмотрен двухуровневый паркинг на 102 машино-места, оборудованный зарядками для электромобилей, а также 17 келлеров площадью 3- 35 кв. м. Территория благоустроена и закрыта от посторонних, работает круглосуточное видеонаблюдение и система контроля доступа. В домах установлена IP-домофония с возможностью удаленного видеоконтроля. Резидентам доступны спа-зона, бассейн, хамам, финская сауна, гидромассаж, фитнес-зал, а также круглосуточный консьерж-сервис. В радиусе 2 км доступны детские сады, школы, медицинские учреждения, кафе, рестораны, магазины, спортивные клубы, яхт-клуб, Елагин остров, Приморский парк Победы и Диво-остров. Газпром Арена находится в 3 км. За 10 минут транспортом можно выехать на ЗСД, а дорога до центра Санкт-Петербурга занимает около 25 минут.























































































































































