459 701 ₽/м²
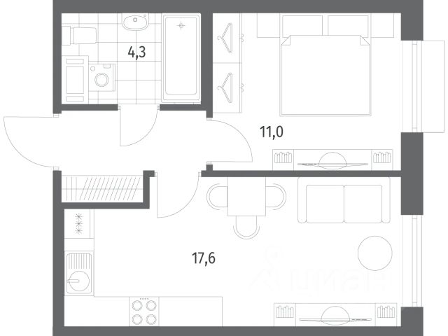
Продается квартира площадью 33.5 м² на 7 этаже 2 секции в Парусная 1 от компании ГК "ТРЕСТ". Площадь кухни 14.3 м². Семейный жилой комплекс бизнес-класса "Парусная 1" от ГК "ТРЕСТ" расположен в исторической части Васильевского острова, рядом с набережной Галерной гавани и Финским заливом в окружении парков и живописных мест для прогулок. Уникальный квартал с великолепным благоустройством, просторными квартирами, закрытой охраняемой территорией и подземными паркингами. Проект жилого квартала из 12 корпусов, объединенных общим стилобатом, разработан архитектурным бюро "Студия 44". 59% квартир в жилом комплексе семейные двух и трехкомнатные. Архитектура базируется на простоте геометрических форм и пластического разнообразия фасадных решений. Использование контрастного темного и светлого облицовочного кирпича и декоративной штукатурки, поддерживает исторический стиль застройки Васильевского острова. Фасадные решения представлены сложносочиненной системой выступов и смещений. За счет постановки домов в шахматном порядке между ними образуются транзитные пассажи и уютные камерные дворики. Часть квартир на первых этажах обустроена индивидуальными террасами-патио, а на верхних предусмотрены квартиры с просторными открытыми террасами. Во всех квартирах будет установлено панорамное остекление и системы умного дома, высота потолков до 3,2 м. На территории квартала уже ведётся строительство детского сада на 280 мест и средней общеобразовательной школы на 825 учащихся. В шаговой доступности находятся более десяти детских садов и школ, также запланировано строительство школы на 1375 мест в 5 минутах от квартала. Дворы домов проектируются закрытыми и свободными от автомобилей. Проектом предусмотрен двухуровневый паркинг на 721 машиноместо с доступом на лифте, парадным входом и бесконтактной системой въезда с определением гос. номера автомобиля. Внутриквартальная территория приподнята над поверхностью земли на 3,5 м. Образующееся между домами "плато", куда ведут пологие лестницы и пандусы, предоставляет жителям благоустроенное пространство где предусмотрены безопасные игровые и спортивные площадки для детей разного возраста, амфитеатр, а также места для общего досуга и общения жителей. Проектом предусмотрены колясочные и велопарковки. Отсутствие ступенек и крылец обеспечит удобный доступ в парадные для всех категорий граждан. Проект комплексного благоустройства и ландшафтного дизайна выполнен студией DEREVO PARK. Приватные дворы домов объединены общей концепцией в основе которой лежит взаимодействие человека с водой. Здесь появятся водные чаши, водопад, канальцы для сбора дождевой воды, детские зоны для игр, а также малые архитектурный формы. В просторных входных группах с панорамными окнами и высокими потолками будут созданы удобные зоны ожидания для гостей с мягкой мебелью, журнальными столиками и декоративными вазами. Квартиры в ЖК "Парусная 1" можно приобрести с современной и стильной отделкой от застройщика. Для п



















































































