161 905 ₽/м²
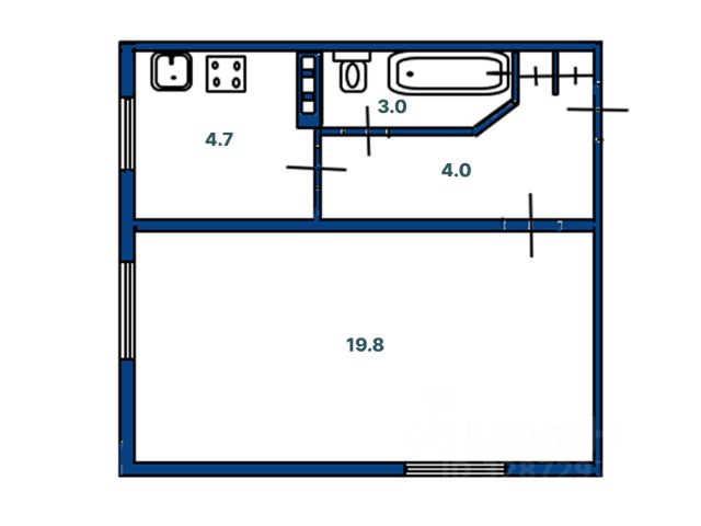
Однокомнатная квартира 31.5 кв.м. в малоэтажном доме. Прямая продажа. Полная стоимость в договоре(без занижения). Без обременений и зарегистрированных! Кухня - столовая 4.7 кв.м. Жилую комнату 19.8 кв.м. можно разделить на гостевую, спальную зоны. Прихожая 4.0 кв.м. Санузел совмещенный. Вид из окон во двор. В квартире выполнен косметический ремонт в светлых тонах: стены оклеены обоями, натяжные потолки, на полу - ламинат, установлены межкомнатные двери и качественная металлическая дверь. Новым жильцам остается: электроплита и стиральная машина. Дом построен в 1959 году, оснащен газоснабжением, что обеспечивает удобство в быту. Двор зеленый, благоустроенный с открытой парковкой. Рядом с домом школа с углубленным изучением английского языка. В пешей доступности находятся детские сады, гимназия, сетевые продуктовые магазины, кафе и аптеки. Остановка общественного транспорта в 4-х минутах ходьбы. До железнодорожной станции "Колпино" - 12 минут пешком. Отличным местом для прогулок станут Никольский сквер с детскими площадками и местами для отдыха и пляж. Показы в любое удобное время по предварительной записи, звоните! ID квартиры а728. Купить квартиру в переулке Тосненский в городе Колпино в Санкт-Петербурге.










































































