


155 900 ₽/м²
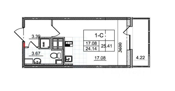
Продаётся квартира-студия площадью 28,62 кв.м на 10 этаже 12 этажного дома (Корпус 4.2, Секция 1) проекта ПИК Таллинский парк. Светлый просторный подъезд на уровне земли, функциональная планировка, большие окна, без отделки. "Таллинский парк" - проект в Ленинградской области, в районе Новоселье. До станции метро "Проспект Ветеранов" - 15 минут на автомобиле, а до КАД можно доехать всего за 4 минуты. "Таллинский парк" включает 16 жилых домов, детский сад и школу. В проекте появится центральный сквер с обильным озеленением, а через весь квартал протянутся широкие пешеходные бульвары. В зелёных дворах-парках будут оборудованы современные детские и спортивные площадки, обустроены места для отдыха. На первых этажах разместятся магазины, кафе и другие сервисы. Проектом предусмотрены персональные кладовые помещения - это доступный, экономичный и удобный способ хранения сезонных и крупногабаритных вещей. Освободите свою квартиру для полноценной жизни. Район Новоселье активно развивается в городском формате: здесь уже работают детские сады, школа и магазины. Для любителей зимних видов спорта открыта круглосуточная ледовая арена Ice Rink. За покупками и развлечениями также можно быстро доехать: 10 минут - и вы в Аутлете Fashion House Таллинское, гипермаркетах Лента, Леруа Мерлен и Окей. В 10 минутах на автомобиле находится Финский залив, на берегу которого расположились объекты культурного наследия. Рядом - Константиновский парк с отреставрированным дворцом, а чуть дальше расположена усадьба Знаменка. В великолепном Петергофе вы будете уже через 20 минут. Артикул 1026468 (Застройщик ООО "СПЕЦИАЛИЗИРОВАННЫЙ ЗА СТРОЙЩИК "СТРОЙ-ЭКСПЕРТ ") [cn_sbp_1817860]




































































































































