185 360 ₽/м²
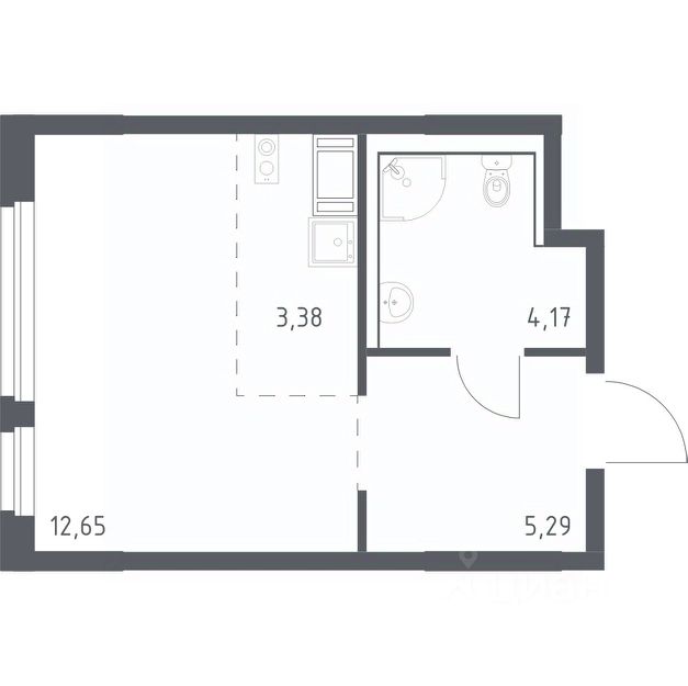
Цена со скидкой до 30% в прямой продаже от застройщика — только в этом месяце. Беспроцентная рассрочка. Студия в ЖК Up-квартал "Новый Московский" на 10-м этаже. Общая площадь 19,26. Без отделки. ГК ФСК представляет премьеру в концепции UP-кварталов: жилой комплекс "Новый Московский" в Пушкинском районе. Этот комплекс объединит в себе успешный опыт строительства комплексных современных проектов класса комфорт+ и лучшие мировые практики строительства и урбанистики. Стандарт UP-кварталов создавать не просто привычные жилые комплексы, а особенные проекты, жизнь в которых комфортна в каждой детали. В числе элементов этого стандарта, примененных в "Новом Московском": - Современная архитектурная концепция от известного петербургского бюро "А. Лен"; - Разнообразие планировок с преобладанием евро-формата; - Увеличенное количество окон в квартирах; - Возможность выбирать квартиры с авторской отделкой; - Продуманное и эстетичное благоустройство территории с преобладанием натуральных материалов и многое другое.


























































































