


202 620 ₽/м²
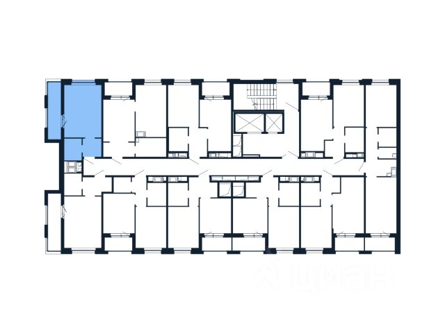
Прямая продажа от застройщика! Готовая Студия 24 кв.м с предчистовой отделкой на 6 этаже в сданном ЖК "Полис Новоселье". 20 квартир со скидкой 26%, семейная ипотека от 3,5%, рассрочка до 6 месяцев! Ипотека всем 8% на 7 лет "Полис Новоселье" 12-этажный квартал в пригороде Санкт-Петербурга. Он расположен в 15-ти минутах езды от метро "Ветеранов", по соседству от Стрельны и Петергофа. Это место для жизни за последнее время стало популярным и любимым, особенно у ценителей тихой жизни на свежем воздухе. Рядом всего в 5-ти минутах ходьбы с кварталом находится Шунгеровский заповедник с редкими растениями и птицами. Местные жители гуляют здесь в любое время года. Всего в получасе езды от дома находится Безымянное озеро с чистейшей водой и благоустроенным пляжем. Рядом с кварталом есть выезд на КАД, к которому все дома развёрнуты таким образом, чтобы шум с дороги не мешал жителям. Уже построены два корпуса проекта, каждый двор автономен, сюда родители без боязни выпускают детей на прогулку. Этот проект идеален для старта молодой семьи. ДОМ СДАН!





































































































































