


224 280 ₽/м²
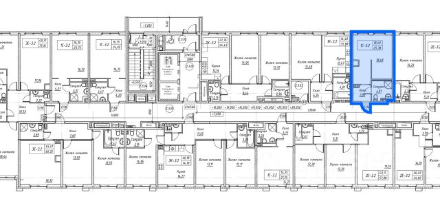
Цена со скидкой до 30% в прямой продаже от застройщика — только в этом месяце. На апартаменты действует беспроцентная рассрочка. Роскошные виды на Неву. Апартамент-студия в комплексе класса бизнес-лайт Зум на Неве на 2-м этаже. Общая площадь 23. Предчистовая отделка. Зум на Неве расположен в новом месте силы рядом с центром города на первой линии Октябрьской набережной в Невском районе, всего в 7 км от исторической части Санкт-Петербурга. Большой выбор эргономичных и максимально продуманных планировок позволит каждому найти вариант по душе. Панорамные виды на Неву, благоустроенные дворы, детская игровая комната, подземный паркинг, коммерческие зоны на первом этаже, это и многое другое делает Зум на Неве идеальным местом для жизни. Особенности: - Панорамные виды на Неву и город; - 10 мин. до Парка Строителей, 15 мин. до Лондон-молла, Ленты, Максидома, 15 мин. до метро "ул. Дыбенко", 12 мин. до КАД, 10 мин. до центра; - Единая архитектурная концепция. Сдержанные и монументальные фасады в неоклассическом стиле; - Парадный лобби для жильцов. Единый вход в комплекс с администратором, зоной ресепшн и охраной, зоной для бесконтактной доставки посылок и еды; - Подземный отапливаемый паркинг с доступом из парадной; - Доступно 3 варианта отделки на выбор: черновая, предчистовая (White Box) и чистовая; - Зоны отдыха для взрослых и детей, Wi-Fi-покрытие во дворе и в паркинге, зоны для питомцев, арт-объекты и много другое. В шаговой доступности вся необходимая инфраструктура от детских садов и школ до супермаркетов и салонов красоты; - Все происходящее контролируется видеокамерами, а покой внутренней территории и безопасность ваших детей гарантируется полным отсутствием транспорта во дворах в концепции "без машин".















































































































































