Мы используем куки-файлы. Соглашение об использовании
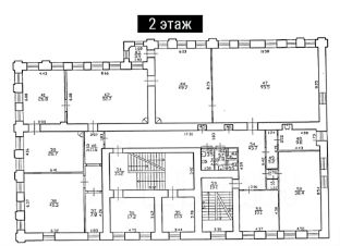
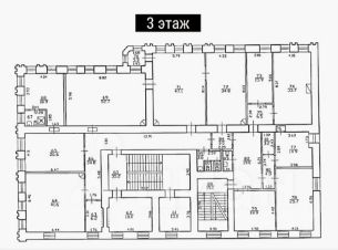
Площадь1 978,2 м²
Этажность3
КлассB
Год постройки1890
Отчёт о привлекательности объектаУзнайте, насколько помещение и район подходят для вашего бизнеса
Что входит в отчёт
  • Охват населения
  • Пешеходный трафик
  • Автомобильный трафик
  • Средний бюджет семьи по району
  • Арендные ставки рядом
  • Точки притяжения
  • Конкуренты в радиусе 1 км
  • Рекомендации по выбору места для бизнеса
ПРЕДЛОЖЕНИЕ ОТ СОБСТВЕННИКА ЗДАНИЯ, без комиссии для арендатора: аренда особняка-конторы Колобовых. Возможна аренда 1-го,2-го,3-го этажа и мансарды Особняк является объектом культурного наследия. Расположен на первой линии Песочной набережной, на пересечении ул. Большая Зеленина, Левашовского проспекта, Песочной набережной в г. Санкт-Петербург, имеет прекрасные видовые характеристики и окружение (премиальные ЖК, бизнес-центры класса А, В+, Академия туризма и т. д. ). -Общая площадь здания: 1978,2 м2 -Этажность: 3 этажа и мансарда. -Электрическая мощность 43 кВа. -Год постройки: 1890. -ОКН особняк-контора Колобовых. -В 2022 году проведена реставрация здания. -КН: 78:07:0003202:1019. -Технологическая вытяжка: есть. Условия аренды: - 30 000 руб. кв. м/год, включая НДС.
lock

Войдите или зарегистрируйтесь
для просмотра информации

Просматривайте условия сделки и всю информацию об объекте
Сохраняйте фильтры в поиске и не вводите заново
Доступ к избранному с любого устройства
Неограниченное добавление в избранное
Позвоните автору
Вам ответят на все вопросы
Остались вопросы по объявлению?
Позвоните владельцу объявления и уточните необходимую информацию.
  • Инфраструктура
  • Похожие рядом
Естественная вентиляция
Местное кондиционирование
Центральное отопление
Сигнализация
Помощь надёжных риелторов
Риелтор партнёр Циан поможет купить или продать любую недвижимость
Управляющая компанияID 35542752
  • Документы проверены
  • 6 лет 9 месяцев на Циане
  • 1 объявление
  • 3 956 400 ₽/мес.

    Прямая аренда (от года), минимальный срок аренды 11 месяцев, доступны арендные каникулы, предоплата за 1 месяц

    55 802 $/мес.
    47 827 /мес.
    Цена за метр
    24 000 ₽ в год
    Налог
    НДС не включен
    Комиссия
    нет
    Коммунальные платежи
    включены
    Эксплуатационные расходы
    включены
    Управляющая компанияID 35542752
    Документы проверены