Мы используем куки-файлы. Соглашение об использовании
Помещение свободного назначения, 965,4 м²

Сдается помещение свободного назначения (А)

Площадь965,4 м²
Этаж2 из 8
КлассA
Отчёт о привлекательности объектаУзнайте, насколько помещение и район подходят для вашего бизнеса
Что входит в отчёт
  • Охват населения
  • Пешеходный трафик
  • Автомобильный трафик
  • Средний бюджет семьи по району
  • Арендные ставки рядом
  • Точки притяжения
  • Конкуренты в радиусе 1 км
  • Рекомендации по выбору места для бизнеса
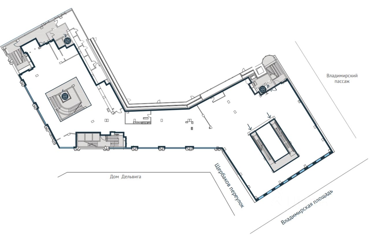
В аренду предлагается помещение площадью 965,4 кв.м. на 2 этаже рядом со входом в метро Достоевская. ПРЕИМУЩЕСТВА ПОМЕЩЕНИЯ: Удобная открытая планировка Отдельный вход 2 лифта Вид на Владимирскую площадь Два эскалатора Высокие потолки 3.3 м Все городские коммуникации - ГВХ, ХВС, теплоснабжение Технический лифт для погрузки/разгрузки Электрическая мощность отдельный ввод, 40 кВт с возможностью увеличения Вентиляция общеобменная, система кондиционирования С отделкой от предыдущего арендатора Подходит под любой вид коммерческой деятельности Предусмотрено место для погрузо-разгрузочных работ Собственник юридическое лицо Ранее помещение арендовал магазин Буквоед. Арендные каникулы и итоговые коммерческие условия обсуждаются индивидуально. Звоните по номеру, указанному в объявлении, менеджер объекта расскажет подробнее о помещении и организует просмотр в удобное для Вас время. О компании Desna Development это инвестиционно-управляющая компания, основанная в 1999 в Санкт- Петербурге. Ключевое направление деятельности коммерческая недвижимость: инвестирование и управление деловыми, торговыми и многофункциональными центрами. Портфель проектов Desna Development составляет 850 000 м². В собственности и управлении компании 7 бизнес-центров в Санкт-Петербурге, 2 торгово-развлекательных центра в Ярославле и Сургуте, а также комплекс Neva Towers в районе Москва-Сити.
lock

Войдите или зарегистрируйтесь
для просмотра информации

Просматривайте условия сделки и всю информацию об объекте
Сохраняйте фильтры в поиске и не вводите заново
Доступ к избранному с любого устройства
Неограниченное добавление в избранное
Позвоните автору
Вам ответят на все вопросы
Остались вопросы по объявлению?
Позвоните владельцу объявления и уточните необходимую информацию.
  • Инфраструктура
  • Похожие рядом
Помощь надёжных риелторов
Риелтор партнёр Циан поможет купить или продать любую недвижимость
3 535 364 ₽/мес.

Прямая аренда (от года), минимальный срок аренды 11 месяцев, доступны арендные каникулы, предоплата за 2 месяца

48 204 $/мес.
41 156 /мес.
Цена за метр
43 945 ₽ в год
Налог
НДС включен: 637 524 ₽
Комиссия
нет
Коммунальные платежи
включены
Эксплуатационные расходы
включены
Агентство недвижимости
Суперагент