Мы используем куки-файлы. Соглашение об использовании
Площади102 – 302 м²
Этаж4 из 5
Парковка25 мест
КлассB+
Отчёт о привлекательности объектаУзнайте, насколько помещение и район подходят для вашего бизнеса
Что входит в отчёт
  • Охват населения
  • Пешеходный трафик
  • Автомобильный трафик
  • Средний бюджет семьи по району
  • Арендные ставки рядом
  • Точки притяжения
  • Конкуренты в радиусе 1 км
  • Рекомендации по выбору места для бизнеса
Доступно 6 площадей
102 м²
4 этаж
204 000 ₽/мес.
24 000 ₽/м² в год
103 м²
2 этаж
206 000 ₽/мес.
24 000 ₽/м² в год
106 м²
3 этаж
212 000 ₽/мес.
24 000 ₽/м² в год
129 м²
3 этаж
258 000 ₽/мес.
24 000 ₽/м² в год
200 м²
4 этаж
400 000 ₽/мес.
24 000 ₽/м² в год
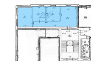
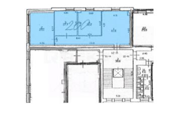
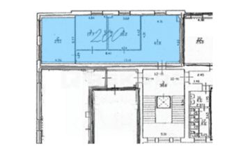
Сдаются в аренду помещения в бизнес-центре класса В в непосредственной близости от метро. Бизнес-центр расположен в Петроградском районе и находится в 4 минутах от метро Чкаловская. Здание реконструировано в 1996 году, оснащено всеми необходимыми инженерными системами, в том числе кодиционированием. Адрес: Санкт-Петербург, ул. Большая Разночинная д. 14, лит. А. Ближайшее метро: Чкаловская. Арендная ставка: 2 000 руб/м2 в мес. (УСНО) включая коммунальные услуги, электричество, OPEX, уборка Характеристики помещения: Планировка: кабинетная Телекоммуникации: интернет, wi-fi и телефонная линия Вентиляция: естественная Кондиционирование: местное Характеристики бизнес-центра: Общая площадь: 6 397 м2 Этажность: 5 Парковка: 25 машино-мест по 11 500 руб. в мес. Пассажирские лифты: 2 шт. Пропускная система: есть Инфраструктура: кафе, ресторан, конференц-зал Договор аренды заключается напрямую с собственником бизнес-центра. Какие-либо дополнительные проценты и комиссии отсутствуют. Звоните, мы покажем помещение в любое удобное для вас время.
lock

Войдите или зарегистрируйтесь
для просмотра информации

Просматривайте условия сделки и всю информацию об объекте
Сохраняйте фильтры в поиске и не вводите заново
Доступ к избранному с любого устройства
Неограниченное добавление в избранное
Позвоните автору
Вам ответят на все вопросы
Остались вопросы по объявлению?
Позвоните владельцу объявления и уточните необходимую информацию.
  • Инфраструктура
  • Похожие рядом
Помощь надёжных риелторов
Риелтор партнёр Циан поможет купить или продать любую недвижимость
204 000 – 604 000 ₽/мес.

Прямая аренда (от года), минимальный срок аренды 11 месяцев, предоплата за 1 месяц

от 2 754 до 8 154 $/мес.
от 2 346 до 6 946 €/мес.
Цена за метр
от 24 000 ₽ в год
Налог
УСН
Комиссия
нет
Коммунальные платежи
включены
Эксплуатационные расходы
включены
Агентство недвижимости
Суперагент
На Циан
7 лет
Объектов в работе
368