Мы используем куки-файлы. Соглашение об использовании

Офисы у Лахты от Собственника

Площади53,1 – 229,5 м²
Этаж1 из 4
КлассB
Отчёт о привлекательности объектаУзнайте, насколько помещение и район подходят для вашего бизнеса
Что входит в отчёт
  • Охват населения
  • Пешеходный трафик
  • Автомобильный трафик
  • Средний бюджет семьи по району
  • Арендные ставки рядом
  • Точки притяжения
  • Конкуренты в радиусе 1 км
  • Рекомендации по выбору места для бизнеса
Доступно 4 площади
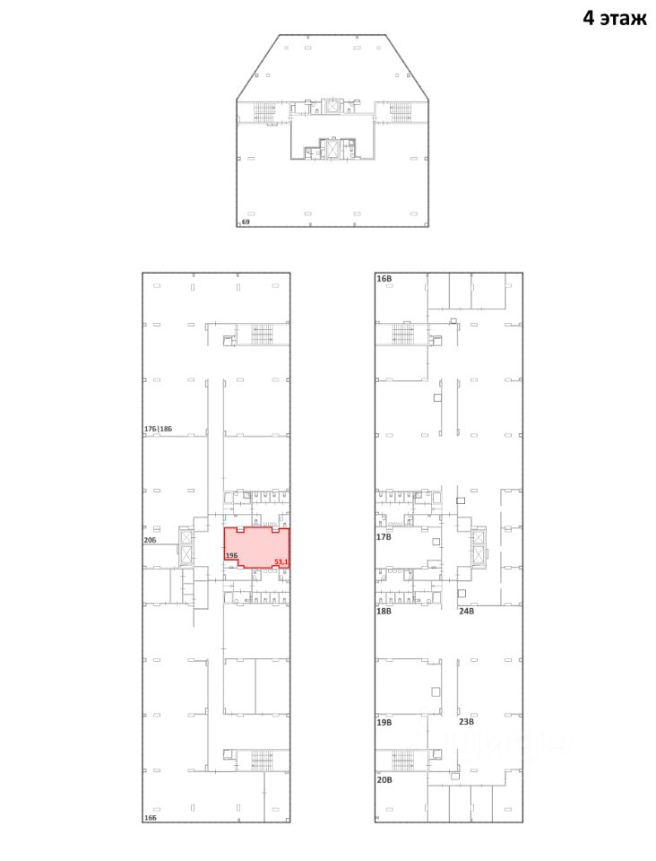
53,1 м²
4 этаж
90 270 ₽/мес.
20 400 ₽/м² в год
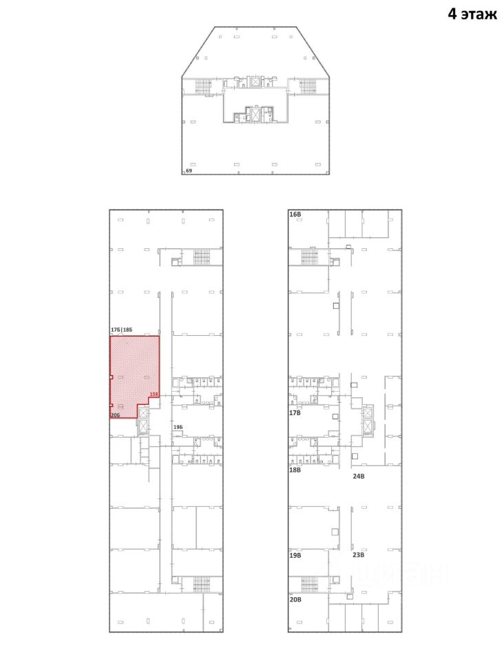
153 м²
4 этаж
260 100 ₽/мес.
20 400 ₽/м² в год
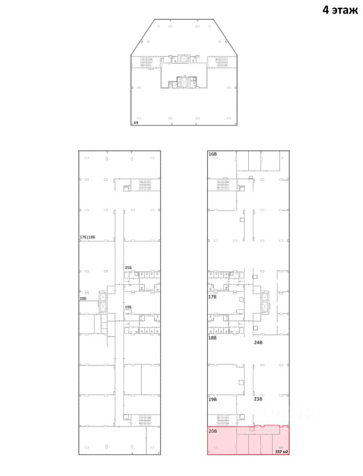
157 м²
4 этаж
266 900 ₽/мес.
20 400 ₽/м² в год
229,5 м²
1 этаж
390 150 ₽/мес.
20 400 ₽/м² в год
Погрузитесь в атмосферу современного офиса! Устали от объявлений агентств? Нужен престижный офис с уникальным дизайном и определенной площадью, но рыночное предложение ограничено? Не устраивает ситуация в данный момент и хотите сотрудничать с честным арендодателем? Представьте, что вы можете напрямую связаться с СОБСТВЕННИКОМ, владеющим крупнейшими площадями в Санкт-Петербурге от В+ до А+ классов! Теперь у вас есть прямой контакт! Лучше направьте комиссию агента на аренду или улучшение рабочего пространства. БЦ Business Box 2019г (класс В+) современный деловой квартал из 4-х корпусов. Преимущества: Бесплатное предоставление юридического адреса Арендные каникулы на переезд Уникальный дизайн Бизнес-центра Панорамные окна Индивидуальный подход к Вашему корпоративному стилю, возможна организация перегородок Многофункциональные планировки Кафе с бизнес-ланчами и конференц-залом Бесплатная развозка от/до м. Беговая 3,5 км Выезд на ЗСД (9 мин), на КАД (13 мин), до Набережной (5 мин) Подземный отапливаемый паркинг на 168 м/мест + наземная парковка Доступ в офис 24/7 по магнитным картам с возможностью получения информации Круглосуточная охрана с видеонаблюдением Экологически чистая зеленая зона Пеший выход на Финский залив (10 мин) Площадь: К аренде доступны площади от 53,1 м² до 229,5 м² *возможны другие варианты, подробнее в профиле и по телефону. Стоимость: от 1700 руб./м²* *Цена указана с учетом НДС, электроэнергия оплачивается по счетчикам. Технические характеристики: - отопление от автономной газовой котельной - приточно-вытяжная система вентиляции, воздухообмен (из расчета 60 м/ч) - 2 провайдера - электро и скс разводка по полу (в стяжке) из расчета 6 м² на 1 сотрудника - по 2 лифта KONE в каждом корпусе с доступом на подземный паркинг - этажность 4 (основных) + 1 (паркинг) СЭКОНОМЬТЕ свое ВРЕМЯ на поиск офиса и ДЕНЬГИ на комиссию агенту добавляйте профиль в избранное, чтобы получать СПЕЦПРЕДЛОЖЕНИЯ и ЗВОНИТЕ нам! Для: юридическим адресом, регистрация ООО, офис с юридическим адресом, юридический адрес, аренда от собственника, прямая аренда, аренда офиса от собственника.
lock

Войдите или зарегистрируйтесь
для просмотра информации

Просматривайте условия сделки и всю информацию об объекте
Сохраняйте фильтры в поиске и не вводите заново
Доступ к избранному с любого устройства
Неограниченное добавление в избранное
Позвоните автору
Вам ответят на все вопросы
Остались вопросы по объявлению?
Позвоните владельцу объявления и уточните необходимую информацию.
  • Инфраструктура
  • Похожие рядом
  • Общая площадь229,5 м²
Центральное кондиционирование
Автономное отопление
Помощь надёжных риелторов
Риелтор партнёр Циан поможет купить или продать любую недвижимость
Управляющая компанияИнвестКомплекс
Суперагент
  • 6 лет 2 месяца на Циане
  • 19 объявлений
  • 90 270 – 390 150 ₽/мес.

    Прямая аренда (от года), минимальный срок аренды 11 месяцев, обеспечительный платёж 119400 ₽, предоплата за 1 месяц

    от 1 274 до 5 508 $/мес.
    от 1 115 до 4 820 €/мес.
    Цена за метр
    от 20 400 ₽ в год
    Налог
    УСН
    Комиссия
    нет
    Коммунальные платежи
    не включены
    Эксплуатационные расходы
    включены
    Управляющая компанияИнвестКомплекс
    Суперагент