Мы используем куки-файлы. Соглашение об использовании
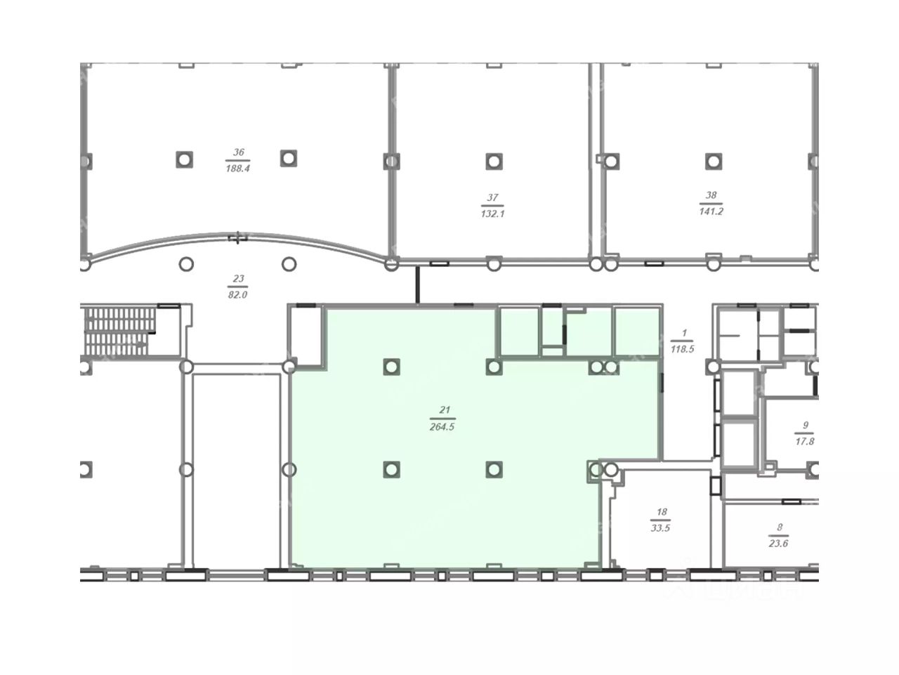
Площадь264,5 м²
Этаж2 из 7
Парковка200 мест
ПомещениеСвободно
КлассB+
Отчёт о привлекательности объектаУзнайте, насколько помещение и район подходят для вашего бизнеса
Что входит в отчёт
  • Охват населения
  • Пешеходный трафик
  • Автомобильный трафик
  • Средний бюджет семьи по району
  • Арендные ставки рядом
  • Точки притяжения
  • Конкуренты в радиусе 1 км
  • Рекомендации по выбору места для бизнеса
Офисное помещение 264.5 кв. м в бизнес-центре "Энерго". Объект скоро освободится. Успейте забронировать на выгодных условиях. Готовность ко въезду уточняется по запросу. Район: Московский. Ближайшие станции метро: Московские ворота, Фрунзенская. Характеристики: - Класс: A; - Арендопригодная площадь: 17000; - Код налоговой: 10; - Размер типового этажа: 3000; - Высота потолков: 2.4 м, 3.6 м; - Наличие лифта: Есть; - Кол-во мест наземного паркинга: 200; - Интернет-провайдеры: Комфортел, Мегафон, Ростелеком, Эр-Телеком (Дом. ru); - Шаг колонн: 66 м; - Кол-во мест в закрытом паркинге: 200. Арендная ставка: 1 890 руб./кв. м в месяц. Финансовые условия: - В стоимость включено: OPEX, НДС; - Оплачивается отдельно: Интернет, Коммунальные услуги, Телефония, Уборка; - Налог: УСН (НДС 5%). Без комиссии и скрытых платежей для арендатора. Готовы оперативно организовать просмотр в удобное время, предоставить PDF-презентацию и план. Точное местоположение объекта можно найти по данным координатам: 59.901766,30.323836 ID = c_747202
lock

Войдите или зарегистрируйтесь
для просмотра информации

Просматривайте условия сделки и всю информацию об объекте
Сохраняйте фильтры в поиске и не вводите заново
Доступ к избранному с любого устройства
Неограниченное добавление в избранное
Позвоните автору
Вам ответят на все вопросы
Остались вопросы по объявлению?
Позвоните владельцу объявления и уточните необходимую информацию.
  • Инфраструктура
  • Похожие рядом
Помощь надёжных риелторов
Риелтор партнёр Циан поможет купить или продать любую недвижимость
РиелторBright Rich St Petersburg
Суперагент
499 905 ₽/мес.

Прямая аренда (от года), минимальный срок аренды 11 месяцев, доступны арендные каникулы, предоплата за 1 месяц

6 645 $/мес.
5 634 /мес.
Цена за метр
22 680 ₽ в год
Налог
УСН
Комиссия
нет
Коммунальные платежи
не включены
Эксплуатационные расходы
включены
Агентство недвижимости
На Циан
8 лет
Объектов в работе
886
Риелтор
Суперагент