Мы используем куки-файлы. Соглашение об использовании
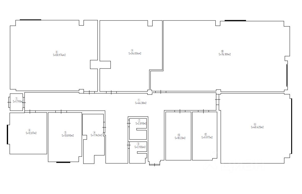
Помещение свободного назначения, 329 м²
Площадь329 м²
Этаж2 из 3
ПомещениеСвободно
Отчёт о привлекательности объектаУзнайте, насколько помещение и район подходят для вашего бизнеса
Что входит в отчёт
  • Охват населения
  • Пешеходный трафик
  • Автомобильный трафик
  • Средний бюджет семьи по району
  • Арендные ставки рядом
  • Точки притяжения
  • Конкуренты в радиусе 1 км
  • Рекомендации по выбору места для бизнеса
Первая линия, вход рядом с Перекрёстком, Выборгское шоссе. Активный, густонаселённый район с хорошей покупательской способностью — место, где бизнесу действительно есть с кем работать. Отдельный вход с Выборгского шоссе — вас легко найти и удобно объяснить дорогу клиентам. Рядом крупный супермаркет, ежедневно проходит большой поток людей — помещение отлично просматривается и даёт стабильный трафик. Метро и остановки транспорта в шаговой доступности. Вокруг — жилые дома, офисы, магазины. Локация живая и понятная. О помещении: — Свободная парковка — Удобная кабинетная планировка — Потолки 2,8 м — Санузел на этаже — Охранно-пожарная сигнализация — Возможность разместить рекламу на фасаде Отделка аккуратная и нейтральная: линолеум на полу, стены под покраску, современное диодное освещение. Помещение полностью готово — можно заезжать и начинать работу без лишних затрат. Предоставим арендные каникулы на время подготовки. Ставка — 350 000 руб. в месяц + коммунальные платежи. Готовы обсуждать долгосрочную аренду и гибкие условия оплаты. Без комиссии для арендатора. Помещение универсальное — подойдёт под офис, услуги, медцентр, обучение, студию, шоурум и другие форматы. Показываем в удобное для вас время. Звоните или пишите — обсудим детали и поможем понять, подойдёт ли это пространство под ваш формат бизнеса. Сохраните объявление в Избранное, чтобы не потерять. Нас ищут: офис_спб #офис_в_питере #аренда_офиса #офис_в_спб #коммерческая_недвижимость #офисная_площадь #аренда_офиса_в_спб #спб_недвижимость #офис_аренда #помещение_для_офиса #офисные_помещения #снять_офис #бизнес_центр_спб #работа_в_спб #офисы_в_питере #офисный_центр #офис_в_бизнес_центре #спб_офис_аренда #аренда_помещений #коммерческая_аренда #офис_с_отделкой #офис_на_продажу #продажа_офиса #аренда_офиса_без_посредников #помещение_под_офис #офис_для_компании #снять_помещение #деловой_центр_спб #офисное_пространство #спб_бизнес #аренда_офисного_пространства #помещение_для_бизнеса #офис_с_мебелью #офис_под_ключ #офис_недвижимость #офисные_помещения_спб #офисы_аренда #бизнес_спб #офис_гибкий #современный_офис #офис_в_центре_спб #аренда_офисов_в_питере #офис_аренда_спб #офис_пространство #офисные_помещения_аренда #офис_аренда_без_посредников #офис_под_бизнес #офис_сдается #недвижимость_спб #офисы_в_спб #офис_для_команды #офис_в_бизнес_центре_спб #помещение_для_стартапа #работа_офис #офис_от_собственника #офис_новый #коммерческая_недвижимость_спб #офис_эконом #офис_с_кухней #офис_спб_аренда #офис_на_проспекте #офисные_помещения_стоимость #бизнес_центр_питер #офис_для_компании_в_спб.
lock

Войдите или зарегистрируйтесь
для просмотра информации

Просматривайте условия сделки и всю информацию об объекте
Сохраняйте фильтры в поиске и не вводите заново
Доступ к избранному с любого устройства
Неограниченное добавление в избранное
Позвоните автору
Вам ответят на все вопросы
Остались вопросы по объявлению?
Позвоните владельцу объявления и уточните необходимую информацию.
  • Инфраструктура
  • Похожие рядом
Помощь надёжных риелторов
Риелтор партнёр Циан поможет купить или продать любую недвижимость
Риелтор
ID 133844660
  • Документы проверены
  • 8 месяцев на Циане
  • 350 000 ₽/мес.

    Прямая аренда (от года), минимальный срок аренды 11 месяцев, доступны арендные каникулы, предоплата за 1 месяц

    4 590 $/мес.
    3 927 /мес.
    Цена за метр
    12 766 ₽ в год
    Налог
    НДС включен: 63 114 ₽
    Комиссия
    нет
    Коммунальные платежи
    не включены
    Эксплуатационные расходы
    не включены
    Риелтор
    ID 133844660
    Документы проверены