Мы используем куки-файлы. Соглашение об использовании
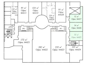
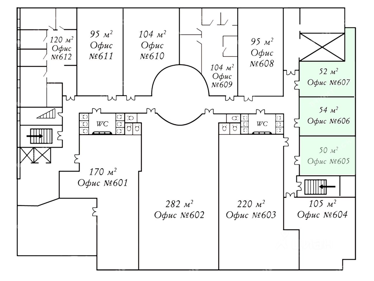
Площадь159 м²
Этаж6 из 8
Парковка110 мест
КлассA+
Отчёт о привлекательности объектаУзнайте, насколько помещение и район подходят для вашего бизнеса
Что входит в отчёт
  • Охват населения
  • Пешеходный трафик
  • Автомобильный трафик
  • Средний бюджет семьи по району
  • Арендные ставки рядом
  • Точки притяжения
  • Конкуренты в радиусе 1 км
  • Рекомендации по выбору места для бизнеса
Офисное помещение 159 кв. м в бизнес-центре Gregory's Palace. Район: Выборгский. Ближайшие станции метро: Лесная. Характеристики: - Класс: A; - Код налоговой: 02; - Арендопригодная площадь: 11797.75; - Высота потолков: 3.4 м; - Кол-во мест наземного паркинга: 110; - Интернет-провайдеры: Авантел, ДАРС-Телеком, Мегафон, МТС, Оптик Телеком. Арендная ставка: 3 144.7 руб./кв. м в месяц. Финансовые условия: - В стоимость включено: OPEX, Коммунальные услуги, Уборка; - Оплачивается отдельно: Интернет, Телефония, Электроэнергия; - Налог: УСН (НДС 5%). Без комиссии и скрытых платежей для арендатора. Готовы оперативно организовать просмотр в удобное время, предоставить PDF-презентацию и план. Точное местоположение объекта можно найти по данным координатам: 59.977322,30.328889 ID = c_1777619
lock

Войдите или зарегистрируйтесь
для просмотра информации

Просматривайте условия сделки и всю информацию об объекте
Сохраняйте фильтры в поиске и не вводите заново
Доступ к избранному с любого устройства
Неограниченное добавление в избранное
Позвоните автору
Вам ответят на все вопросы
Остались вопросы по объявлению?
Позвоните владельцу объявления и уточните необходимую информацию.
  • Инфраструктура
  • Похожие рядом
Помощь надёжных риелторов
Риелтор партнёр Циан поможет купить или продать любую недвижимость
РиелторBright Rich St Petersburg
Суперагент
500 055 ₽/мес.

Прямая аренда (от года), минимальный срок аренды 11 месяцев, доступны арендные каникулы, предоплата за 1 месяц

6 818 $/мес.
5 821 /мес.
Цена за метр
37 740 ₽ в год
Налог
УСН
Комиссия
нет
Коммунальные платежи
включены
Эксплуатационные расходы
включены
Агентство недвижимости
На Циан
8 лет
Объектов в работе
957
Риелтор
Суперагент