Мы используем куки-файлы. Соглашение об использовании
Площадь376,35 м²
Этаж9 из 9
Парковка550 мест
КлассB+
Отчёт о привлекательности объектаУзнайте, насколько помещение и район подходят для вашего бизнеса
Что входит в отчёт
  • Охват населения
  • Пешеходный трафик
  • Автомобильный трафик
  • Средний бюджет семьи по району
  • Арендные ставки рядом
  • Точки притяжения
  • Конкуренты в радиусе 1 км
  • Рекомендации по выбору места для бизнеса
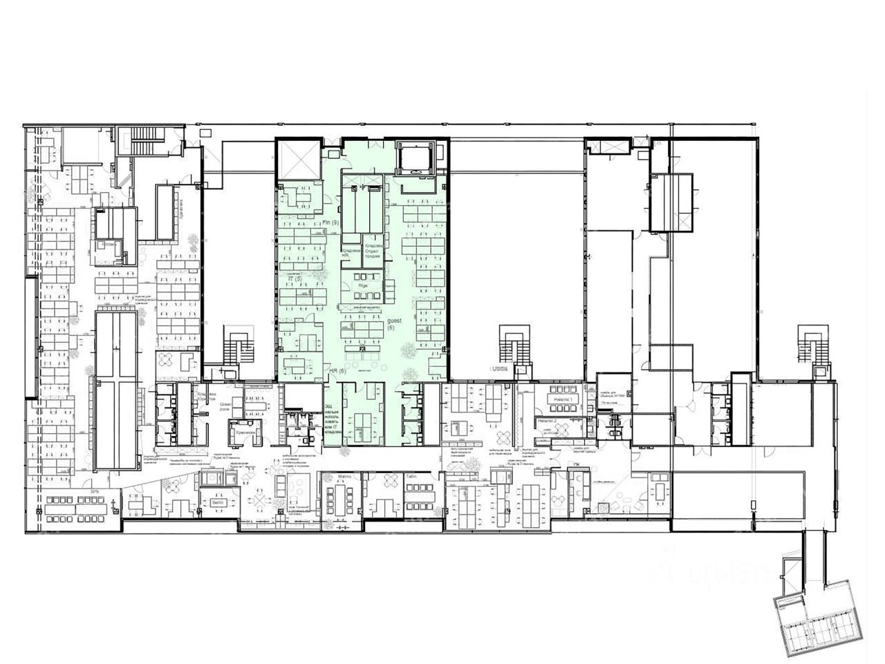
Офисное помещение 376.4 кв. м в бизнес-центре "Невский Центр". Район: Центральный. Ближайшие станции метро: Площадь Восстания, Маяковская. Характеристики: - Класс: A; - Арендопригодная площадь: 45000; - Код налоговой: 41; - Размер типового этажа: 3000; - Высота потолков: 2.7 м; - Наличие лифта: Есть; - Кол-во мест подземного паркинга: 550; - Интернет-провайдеры: Билайн, МТС, ОБИТ, Оранж, Эквант; - Шаг колонн: 8.1x16 м. Арендная ставка: 2 928 руб./кв. м в месяц. Финансовые условия: - В стоимость включено: OPEX, НДС; - Оплачивается отдельно: Интернет, Коммунальные услуги, Телефония, Уборка; - Налог: Включая НДС. Без комиссии и скрытых платежей для арендатора. Готовы оперативно организовать просмотр в удобное время, предоставить PDF-презентацию и план. Точное местоположение объекта можно найти по данным координатам: 59.931742,30.359333 ID = c_692007
lock

Войдите или зарегистрируйтесь
для просмотра информации

Просматривайте условия сделки и всю информацию об объекте
Сохраняйте фильтры в поиске и не вводите заново
Доступ к избранному с любого устройства
Неограниченное добавление в избранное
Позвоните автору
Вам ответят на все вопросы
Остались вопросы по объявлению?
Позвоните владельцу объявления и уточните необходимую информацию.
  • Инфраструктура
  • Похожие рядом
Помощь надёжных риелторов
Риелтор партнёр Циан поможет купить или продать любую недвижимость
РиелторBright Rich St Petersburg
Суперагент
1 101 953 ₽/мес.

Прямая аренда (от года), минимальный срок аренды 11 месяцев, доступны арендные каникулы, предоплата за 1 месяц

14 625 $/мес.
12 473 /мес.
Цена за метр
35 136 ₽ в год
Налог
НДС включен: 198 713 ₽
Комиссия
нет
Коммунальные платежи
не включены
Эксплуатационные расходы
включены
Агентство недвижимости
На Циан
8 лет
Объектов в работе
956
Риелтор
Суперагент