Мы используем куки-файлы. Соглашение об использовании

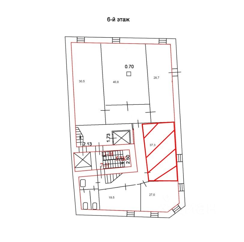
Офисное помещение, 37.3 м²

Площадь37,3 м²
Этаж6 из 6
КлассC
Отчёт о привлекательности объектаУзнайте, насколько помещение и район подходят для вашего бизнеса
Что входит в отчёт
  • Охват населения
  • Пешеходный трафик
  • Автомобильный трафик
  • Средний бюджет семьи по району
  • Арендные ставки рядом
  • Точки притяжения
  • Конкуренты в радиусе 1 км
  • Рекомендации по выбору места для бизнеса
Предлагаем в аренду просторный офис с зонированием площадью 37, 3 кв. м в бизнес-центре Максимум на 7-й Советской улице от собственника. Отличное расположение, удобная инфраструктура и комфортные условия для вашего бизнеса. Бизнес-центр Максимум расположен в Центральном районе Санкт-Петербурга недалеко от станции метро "Площадь Восстания" и Московского вокзала. Удачное расположение офисного центра позволяет быстро решать различные вопросы: от проведения деловых встреч до сложных финансовых операций, а также предоставляет арендаторам все возможности для ведения активной деловой жизни. Преимущества бизнес-центра: - Отличная транспортная доступность; - Рядом остановки общественного транспорта; - Бизнес-центр работает с 7 утра до 00 часов, 7 дней в неделю; - Круглосуточная охрана; - Пожарная сигнализация. ************************************************* ****** Основные характеристики офиса: - Площадь: 37, 3 кв. м. ; - Арендная плата: 51 900 руб. /мес. (без комиссии); - Единое пространство с зонированием; - Коммунальные услуги включены в арендную плату; - Этаж - 6. Возможны индивидуальные условия аренды, рассмотрим возможность перепланировки и дополнительного зонирования помещений, гибкий подход к каждому арендатору. Персональный консультант. ************************************************* ****** Викинг Недвижимость один из крупнейших собственников коммерческой недвижимости в Санкт-Петербурге. В наличии различные типы объектов: стрит-ритейл, офисы, склады, производственные помещения в Центральном, Петроградском, Выборгском, Московском и других районах города. Викинг Недвижимость комплексная поддержка вашего бизнеса: - льготное кредитование; - софинансирование проектов; - юридическое, информационное и налоговое сопровождение; - IТ-услуги. Работаем также с агентствами. Наш консультант ответит на все вопросы и поможет подобрать помещение, которое будет соответствовать вашим требованиям. *подробности уточнять у менеджера объекта
lock

Войдите или зарегистрируйтесь
для просмотра информации

Просматривайте условия сделки и всю информацию об объекте
Сохраняйте фильтры в поиске и не вводите заново
Доступ к избранному с любого устройства
Неограниченное добавление в избранное
Позвоните автору
Вам ответят на все вопросы
Остались вопросы по объявлению?
Позвоните владельцу объявления и уточните необходимую информацию.
  • Инфраструктура
  • Похожие рядом
  • Общая площадь37,3 м²
Помощь надёжных риелторов
Риелтор партнёр Циан поможет купить или продать любую недвижимость
Агентство недвижимости
Суперагент
51 900 ₽/мес.

Прямая аренда (от года), минимальный срок аренды 11 месяцев, предоплата за 1 месяц

729 $/мес.
629 /мес.
Цена за метр
16 698 ₽ в год
Налог
НДС включен: 9 359 ₽
Комиссия
нет
Коммунальные платежи
включены
Эксплуатационные расходы
не включены
Агентство недвижимости
Суперагент
На Циан
7 лет
Объектов в работе
27