Мы используем куки-файлы. Соглашение об использовании

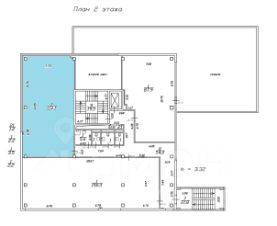
Современный офис в аренду, 114м2

Площадь114 м²
Этаж2 из 5
Отчёт о привлекательности объектаУзнайте, насколько помещение и район подходят для вашего бизнеса
Что входит в отчёт
  • Охват населения
  • Пешеходный трафик
  • Автомобильный трафик
  • Средний бюджет семьи по району
  • Арендные ставки рядом
  • Точки притяжения
  • Конкуренты в радиусе 1 км
  • Рекомендации по выбору места для бизнеса
В новом Бизнес-Центре, расположенном на территории Многофункционального Логистического Комплекса "Кин-Марк" и являющимся самым современным из представленных в Красносельском районе, cобственником предлaгaeтcя в арeнду офиснoe помещениe площaдью 114,1 кв.м на 2 этaже. Бизнес-Центр расположен на территории Логистического Комплекса. Наши преимущества: - Развитая транспортная доступность: Расстояние до: КАД 0,6 км; Пулково 17 км; Большой порт СПБ 15 км; А/Д М 11 13 км. Остановка общественного транспорта 0,2 км. - Большое количество парковочных мест для арендаторов. - Кафе и зоны отдыха. - Комната для переговоров. - Бильярдная. Инженерное обеспечение: - Централизованная система управления зданием; - Собственная отдельно стоящая газовая котельная; - Приточно-вытяжная вентиляция и частичное кондиционирования воздуха; - Лифт Оtis (1 000 кг); - Два независимых источника электроснабжения с большим запасом свободной мощности; - Современная система безопасности и контроля доступа; - Система видеонаблюдения. В ставку включены: НДС, коммунальные расходы (кроме электричества), эксплуатационные расходы; типовая отделка, приточно-вытяжная вентиляция, кондиционирование воздуха. Дополнительно на территории Логистического Комплекса предлагаются в аренду: - открытые площадки от 500 кв.м.; - склады 200/600/1000 кв.м. (снять помещение в аренду, коммерческая недвижимость аренда, снять коммерческое помещение, снять помещение под офис, аренда офиса, аренда офисного помещения, офис в аренду)
lock

Войдите или зарегистрируйтесь
для просмотра информации

Просматривайте условия сделки и всю информацию об объекте
Сохраняйте фильтры в поиске и не вводите заново
Доступ к избранному с любого устройства
Неограниченное добавление в избранное
Позвоните автору
Вам ответят на все вопросы
Остались вопросы по объявлению?
Позвоните владельцу объявления и уточните необходимую информацию.
  • Инфраструктура
  • Похожие рядом
Помощь надёжных риелторов
Риелтор партнёр Циан поможет купить или продать любую недвижимость
Управляющая компанияКин-Марк
  • Документы проверены
  • 3 года 11 месяцев на Циане
  • 7 объявлений
  • 213 500 ₽/мес.

    Прямая аренда (от года), минимальный срок аренды 11 месяцев, предоплата за 1 месяц

    2 995 $/мес.
    2 579 /мес.
    Цена за метр
    22 474 ₽ в год
    Налог
    НДС включен: 38 500 ₽
    Комиссия
    нет
    Коммунальные платежи
    не включены
    Эксплуатационные расходы
    включены
    Управляющая компанияКин-Марк
    Документы проверены