Мы используем куки-файлы. Соглашение об использовании
Площадь995,1 м²
Этаж1 из 3
Парковка70 мест
ПомещениеСвободно
Отчёт о привлекательности объектаУзнайте, насколько помещение и район подходят для вашего бизнеса
Что входит в отчёт
  • Охват населения
  • Пешеходный трафик
  • Автомобильный трафик
  • Средний бюджет семьи по району
  • Арендные ставки рядом
  • Точки притяжения
  • Конкуренты в радиусе 1 км
  • Рекомендации по выбору места для бизнеса
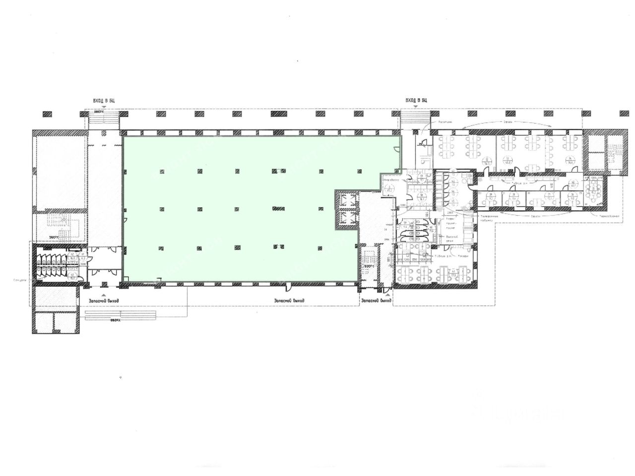
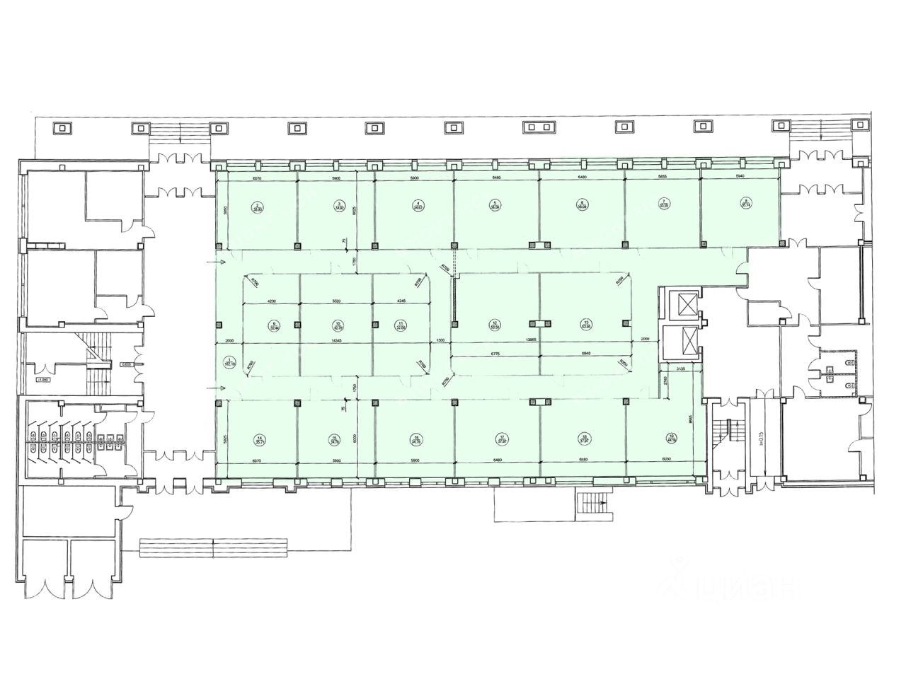
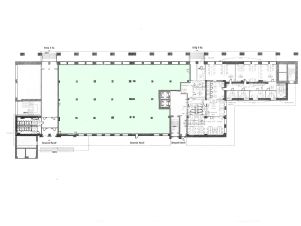
Офисное помещение 995.1 кв. м в бизнес-центре "Косая Линия 16". Район: Василеостровский. Ближайшие станции метро: Горный Институт. Характеристики: - Класс: B; - Арендопригодная площадь: 5641.7; - Код налоговой: 01; - Высота потолков: 3.9 м; - Кол-во мест наземного паркинга: 70; - Интернет-провайдеры: Северен-Телеком, Global Web, Smart-Telecom, WestCall, Метроком. Арендная ставка: 3 675 руб./кв. м в месяц. Финансовые условия: - В стоимость включено: НДС; - Оплачивается отдельно: OPEX, Интернет, Коммунальные услуги, Телефония, Уборка; - Налог: УСН (НДС 5%). Без комиссии и скрытых платежей для арендатора. Готовы оперативно организовать просмотр в удобное время, предоставить PDF-презентацию и план. Точное местоположение объекта можно найти по данным координатам: 59.928380,30.258330 ID = c_1783948
lock

Войдите или зарегистрируйтесь
для просмотра информации

Просматривайте условия сделки и всю информацию об объекте
Сохраняйте фильтры в поиске и не вводите заново
Доступ к избранному с любого устройства
Неограниченное добавление в избранное
Позвоните автору
Вам ответят на все вопросы
Остались вопросы по объявлению?
Позвоните владельцу объявления и уточните необходимую информацию.
  • Инфраструктура
  • Похожие рядом
Помощь надёжных риелторов
Риелтор партнёр Циан поможет купить или продать любую недвижимость
РиелторBright Rich St Petersburg
Суперагент
3 656 993 ₽/мес.

Прямая аренда (от года), минимальный срок аренды 11 месяцев, доступны арендные каникулы, предоплата за 1 месяц

48 084 $/мес.
40 803 /мес.
Цена за метр
44 100 ₽ в год
Налог
УСН
Комиссия
нет
Коммунальные платежи
не включены
Эксплуатационные расходы
не включены
Агентство недвижимости
На Циан
8 лет
Объектов в работе
950
Риелтор
Суперагент