Мы используем куки-файлы. Соглашение об использовании
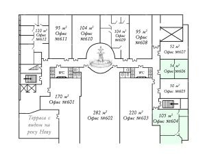
Площадь159 м²
Этаж6 из 8
Парковка110 мест
Объявление снято с публикации, поищите ещё что-нибудь
lock

Войдите или зарегистрируйтесь
для просмотра информации

Просматривайте условия сделки и всю информацию об объекте
Сохраняйте фильтры в поиске и не вводите заново
Доступ к избранному с любого устройства
Неограниченное добавление в избранное
584 961 ₽/мес.

Прямая аренда (от года), минимальный срок аренды 11 месяцев, доступны арендные каникулы, предоплата за 1 месяц

7 998 $/мес.
6 779 /мес.
Цена за метр
44 148 ₽ в год
Налог
УСН
Комиссия
нет
Коммунальные платежи
включены
Эксплуатационные расходы
включены
Агентство недвижимости
Риелтор
Суперагент