Мы используем куки-файлы. Соглашение об использовании
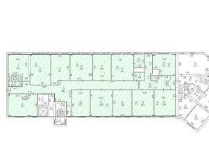
Площадь724,5 м²
Этаж6 из 7
Парковка68 мест
ПомещениеСвободно
Отчёт о привлекательности объектаУзнайте, насколько помещение и район подходят для вашего бизнеса
Что входит в отчёт
  • Охват населения
  • Пешеходный трафик
  • Автомобильный трафик
  • Средний бюджет семьи по району
  • Арендные ставки рядом
  • Точки притяжения
  • Конкуренты в радиусе 1 км
  • Рекомендации по выбору места для бизнеса
Офисное помещение 724.5 кв. м в бизнес-центре "Алкотел". Объект скоро освободится. Успейте забронировать на выгодных условиях. Готовность ко въезду уточняется по запросу. Район: Кировский. Ближайшие станции метро: Нарвская. Характеристики: - Класс: B; - Арендопригодная площадь: 9577.8; - Код налоговой: 05; - Размер типового этажа: 2300; - Высота потолков: 3.2 м, 4.49 м; - Наличие лифта: Есть; - Кол-во мест наземного паркинга: 68; - Охрана: Да; - Интернет-провайдеры: Авантел, Мегафон, Морской Экспресс; - Шаг колонн: 6x6 м. Арендная ставка: 1 550 руб./кв. м в месяц. Финансовые условия: - Оплачивается отдельно: Интернет, Телефония, Уборка; - В стоимость включено: OPEX, Коммунальные услуги; - Налог: УСН (НДС 5%). Без комиссии и скрытых платежей для арендатора. Готовы оперативно организовать просмотр в удобное время, предоставить PDF-презентацию и план. Точное местоположение объекта можно найти по данным координатам: 59.901328,30.287569 ID = c_1764896
lock

Войдите или зарегистрируйтесь
для просмотра информации

Просматривайте условия сделки и всю информацию об объекте
Сохраняйте фильтры в поиске и не вводите заново
Доступ к избранному с любого устройства
Неограниченное добавление в избранное
Позвоните автору
Вам ответят на все вопросы
Остались вопросы по объявлению?
Позвоните владельцу объявления и уточните необходимую информацию.
  • Инфраструктура
  • Похожие рядом
  • Год постройки1983
  • Тип зданияОфисное здание
  • Категория зданияДействующее
  • Общая площадь11 268 м²
Приточная вентиляция
Местное кондиционирование
Помощь надёжных риелторов
Риелтор партнёр Циан поможет купить или продать любую недвижимость
РиелторBright Rich St Petersburg
Суперагент
1 122 975 ₽/мес.

Прямая аренда (от года), минимальный срок аренды 11 месяцев, доступны арендные каникулы, предоплата за 1 месяц

14 973 $/мес.
12 765 /мес.
Цена за метр
18 600 ₽ в год
Налог
УСН
Комиссия
нет
Коммунальные платежи
включены
Эксплуатационные расходы
включены
Агентство недвижимости
На Циан
8 лет
Объектов в работе
975
Риелтор
Суперагент