Мы используем куки-файлы. Соглашение об использовании
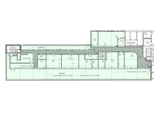
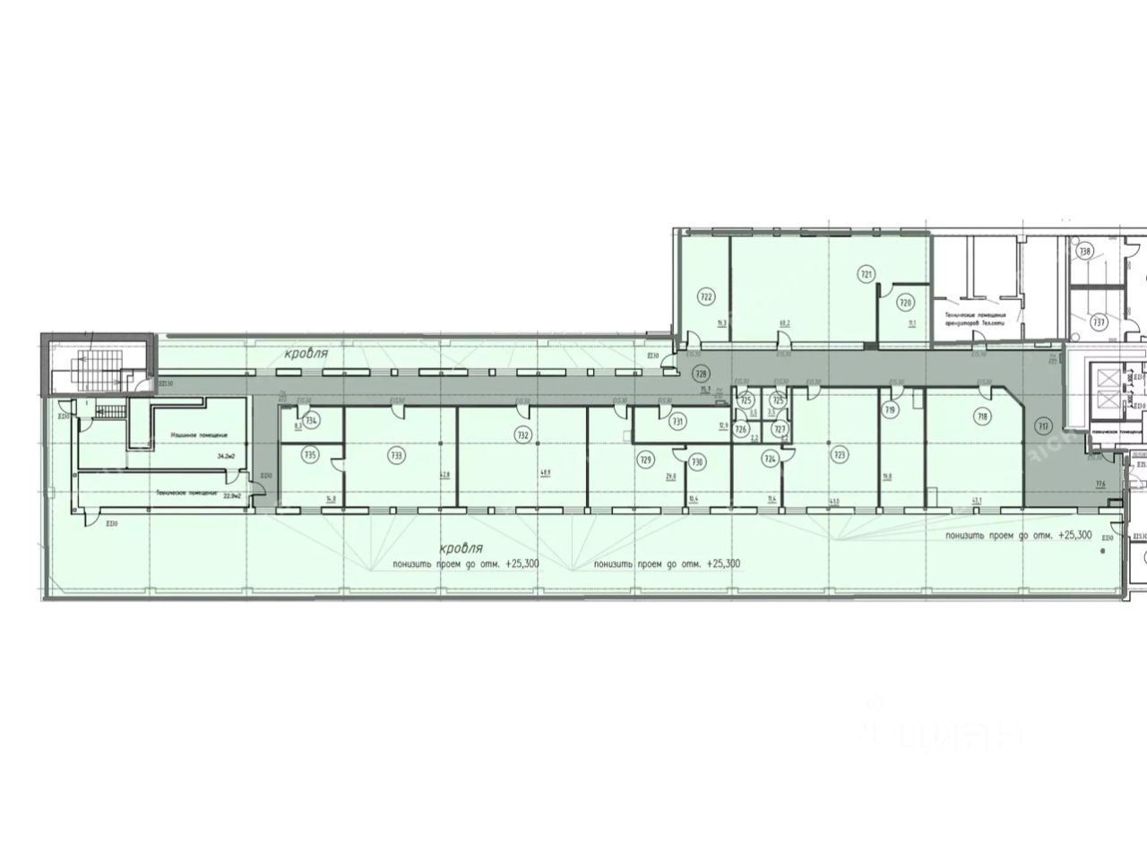
Площадь293,7 м²
Этаж7 из 7
Парковка56 мест
КлассC
Отчёт о привлекательности объектаУзнайте, насколько помещение и район подходят для вашего бизнеса
Что входит в отчёт
  • Охват населения
  • Пешеходный трафик
  • Автомобильный трафик
  • Средний бюджет семьи по району
  • Арендные ставки рядом
  • Точки притяжения
  • Конкуренты в радиусе 1 км
  • Рекомендации по выбору места для бизнеса
Офисное помещение 293.7 кв. м в бизнес-центре "Левашовский 12". Объект на стадии активного строительства, готовность ко въезду уточняется по запросу. Район: Петроградский. Ближайшие станции метро: Петроградская, Чкаловская. Характеристики: - Класс: B; - Арендопригодная площадь: 11332.3; - Код налоговой: 13; - Кол-во мест наземного паркинга: 56; - Охрана: Да. Арендная ставка: 3 745.3 руб./кв. м в месяц. Финансовые условия: - В стоимость включено: OPEX, Коммунальные услуги, НДС; - Оплачивается отдельно: Интернет, Телефония, Уборка; - Налог: Включая НДС. Без комиссии и скрытых платежей для арендатора. Готовы оперативно организовать просмотр в удобное время, предоставить PDF-презентацию и план. Точное местоположение объекта можно найти по данным координатам: 59.965885,30.292961 ID = c_1782113
lock

Войдите или зарегистрируйтесь
для просмотра информации

Просматривайте условия сделки и всю информацию об объекте
Сохраняйте фильтры в поиске и не вводите заново
Доступ к избранному с любого устройства
Неограниченное добавление в избранное
Позвоните автору
Вам ответят на все вопросы
Остались вопросы по объявлению?
Позвоните владельцу объявления и уточните необходимую информацию.
  • Инфраструктура
  • Похожие рядом
Помощь надёжных риелторов
Риелтор партнёр Циан поможет купить или продать любую недвижимость
РиелторBright Rich St Petersburg
Суперагент
1 099 907 ₽/мес.

Прямая аренда (от года), минимальный срок аренды 11 месяцев, доступны арендные каникулы, предоплата за 1 месяц

15 039 $/мес.
12 747 /мес.
Цена за метр
44 940 ₽ в год
Налог
НДС включен: 198 248 ₽
Комиссия
нет
Коммунальные платежи
включены
Эксплуатационные расходы
включены
Агентство недвижимости
На Циан
8 лет
Объектов в работе
965
Риелтор
Суперагент