Мы используем куки-файлы. Соглашение об использовании
Площадь1 978 м²
Этажность4
КлассB
Отчёт о привлекательности объектаУзнайте, насколько помещение и район подходят для вашего бизнеса
Что входит в отчёт
  • Охват населения
  • Пешеходный трафик
  • Автомобильный трафик
  • Средний бюджет семьи по району
  • Арендные ставки рядом
  • Точки притяжения
  • Конкуренты в радиусе 1 км
  • Рекомендации по выбору места для бизнеса
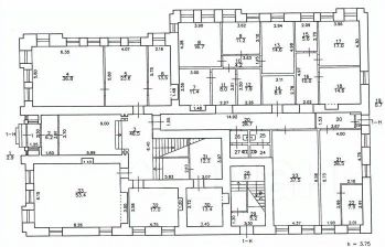
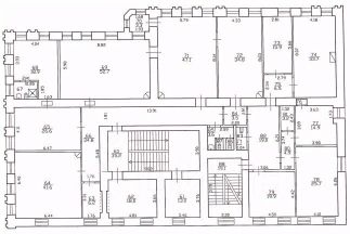
ОФИС ПОД ПРЕДСТАВИТЕЛЬСТВО. ПЛАТИМ БОНУС. Четырехэтажный особняк, историческое здание, построено в стиле - Неоклассицизм в 1890 году, реконструкция произведена в 2017 году. Отличная транспортная и пешеходная доступность, развитая инфраструктура района. Ближайшая станция метро Чкаловская. Налоговая: 25. Лифты: Нет. Вентиляция: Приточно-вытяжная. Кондиционирование: Сплит-системы. Безопасность: Круглосуточный доступ, Контроль доступа, Система пожаротушений, Видеонаблюдение. Парковка: Наземная. Описание помещения: Особняк 4 этажа вместе с мансардой. Все коммуникации центральные. В здании проведена реставрация интерьеров, в 80 процентах сохранена историческая отделка. Земельный участок приватизирован, общая площадь 685 м2. Планировка: кабинетная. Дизайнерский ремонт. VIP-офис. Высокие потолки. Тип налогообложения: С НДС. Лот 43768-68
lock

Войдите или зарегистрируйтесь
для просмотра информации

Просматривайте условия сделки и всю информацию об объекте
Сохраняйте фильтры в поиске и не вводите заново
Доступ к избранному с любого устройства
Неограниченное добавление в избранное
Позвоните автору
Вам ответят на все вопросы
Остались вопросы по объявлению?
Позвоните владельцу объявления и уточните необходимую информацию.
  • Инфраструктура
  • Похожие рядом
Приточная вентиляция
Местное кондиционирование
Помощь надёжных риелторов
Риелтор партнёр Циан поможет купить или продать любую недвижимость
3 956 400 ₽/мес.

Прямая аренда (от года)

53 619 $/мес.
45 279 /мес.
Цена за метр
24 003 ₽ в год
Налог
НДС включен: 713 449 ₽
Комиссия
нет
Коммунальные платежи
не включены
Эксплуатационные расходы
не включены
Агентство недвижимости
Риелтор
Суперагент