Мы используем куки-файлы. Соглашение об использовании
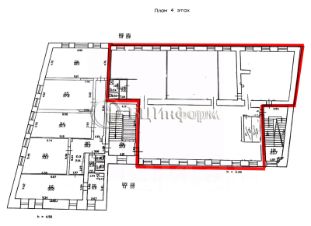
Площадь360 м²
Этаж4 из 4
Отчёт о привлекательности объектаУзнайте, насколько помещение и район подходят для вашего бизнеса
Что входит в отчёт
  • Охват населения
  • Пешеходный трафик
  • Автомобильный трафик
  • Средний бюджет семьи по району
  • Арендные ставки рядом
  • Точки притяжения
  • Конкуренты в радиусе 1 км
  • Рекомендации по выбору места для бизнеса
Предлагается в аренду офисный блок, общей площадью 360 кв.м. Расположен на четвертом этаже Смешанная планировка. Собственные санузлы. Офис с хорошим ремонтом В пешей доступности находится станция метро "Чкаловская". Готово к въезду. Договор аренды осуществляется напрямую с собственником. Без скрытых платежей и комиссий.
lock

Войдите или зарегистрируйтесь
для просмотра информации

Просматривайте условия сделки и всю информацию об объекте
Сохраняйте фильтры в поиске и не вводите заново
Доступ к избранному с любого устройства
Неограниченное добавление в избранное
Позвоните автору
Вам ответят на все вопросы
Остались вопросы по объявлению?
Позвоните владельцу объявления и уточните необходимую информацию.
  • Инфраструктура
  • Похожие рядом
Помощь надёжных риелторов
Риелтор партнёр Циан поможет купить или продать любую недвижимость
500 040 ₽/мес.

Прямая аренда (от года), минимальный срок аренды 11 месяцев, обеспечительный платёж 500000 ₽

6 838 $/мес.
5 870 /мес.
Цена за метр
16 668 ₽ в год
Налог
УСН
Комиссия
нет
Коммунальные платежи
включены
Эксплуатационные расходы
не включены
Агентство недвижимости
Суперагент
На Циан
9 лет
Объектов в работе
342