Мы используем куки-файлы. Соглашение об использовании
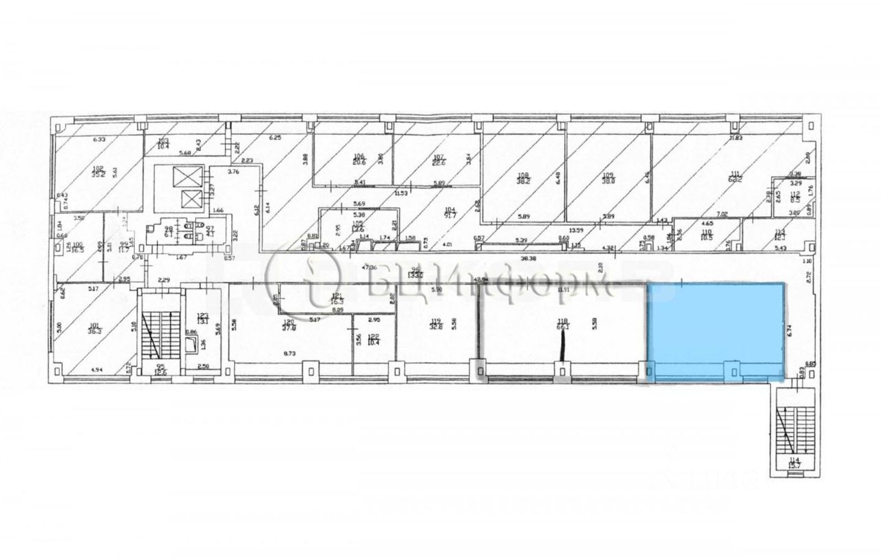
Площадь51,2 м²
Этаж4 из 9
Парковка50 мест
Отчёт о привлекательности объектаУзнайте, насколько помещение и район подходят для вашего бизнеса
Что входит в отчёт
  • Охват населения
  • Пешеходный трафик
  • Автомобильный трафик
  • Средний бюджет семьи по району
  • Арендные ставки рядом
  • Точки притяжения
  • Конкуренты в радиусе 1 км
  • Рекомендации по выбору места для бизнеса
Вниманию арендаторов предлагается помещение под офис, площадь - 51.2 м.кв. Располагается на четвертом этаже здания. Кабинет открытой планировки. В хорошем состоянии. Выполнена типовая отделка: стены обои, потолок Армстронг. Установлен кондиционер. Оснащено системой приточно-вытяжной вентиляцией. Есть пожарная сигнализация и система пожаротушения. В пешей доступности находится станция метро "Московские ворота". Готово к въезду. Договор аренды осуществляется напрямую с собственником. Без скрытых платежей и комиссий.
lock

Войдите или зарегистрируйтесь
для просмотра информации

Просматривайте условия сделки и всю информацию об объекте
Сохраняйте фильтры в поиске и не вводите заново
Доступ к избранному с любого устройства
Неограниченное добавление в избранное
Позвоните автору
Вам ответят на все вопросы
Остались вопросы по объявлению?
Позвоните владельцу объявления и уточните необходимую информацию.
  • Инфраструктура
  • Похожие рядом
Помощь надёжных риелторов
Риелтор партнёр Циан поможет купить или продать любую недвижимость
81 920 ₽/мес.

Прямая аренда (от года), минимальный срок аренды 11 месяцев, обеспечительный платёж 81920 ₽

1 145 $/мес.
959 /мес.
Цена за метр
19 200 ₽ в год
Налог
УСН
Комиссия
нет
Коммунальные платежи
включены
Эксплуатационные расходы
не включены
Агентство недвижимости
Суперагент
На Циан
9 лет
Объектов в работе
375