Мы используем куки-файлы. Соглашение об использовании
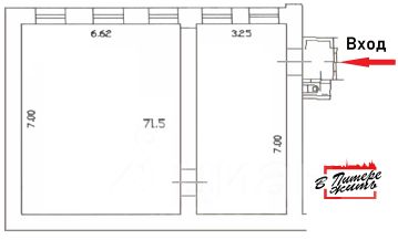
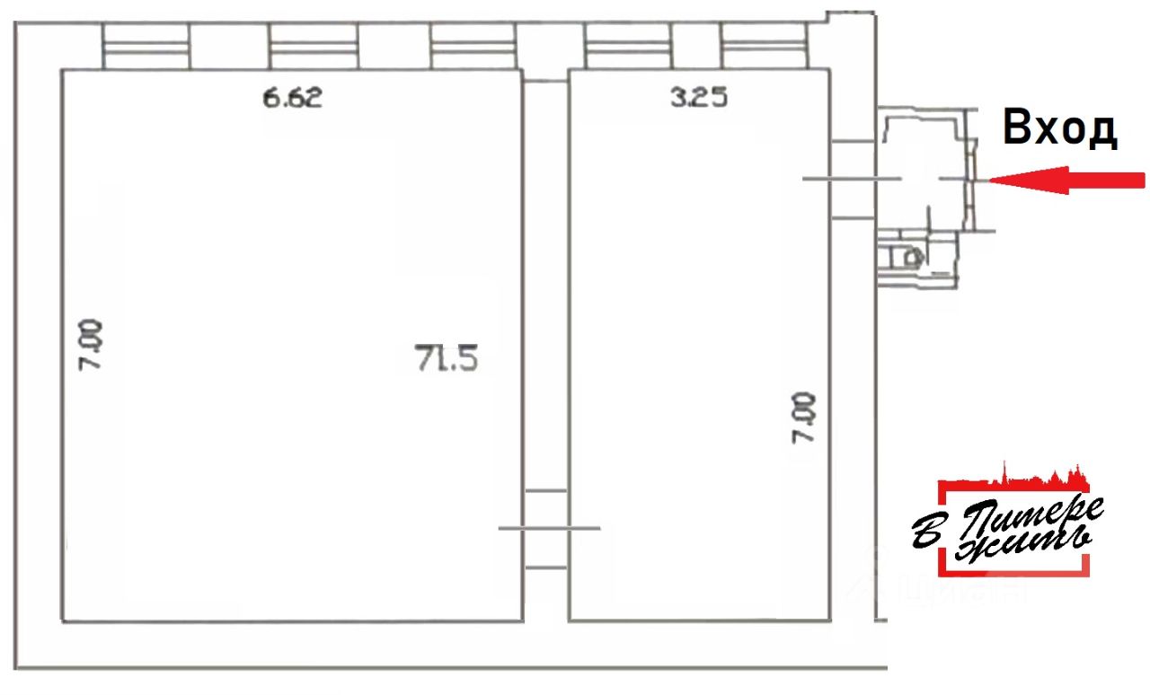
Помещение свободного назначения, 74,7 м²

Сдается помещение свободного назначения, 74,7 м²

Площадь74,7 м²
Этаж-1 из 4
ПомещениеСвободно
Отчёт о привлекательности объектаУзнайте, насколько помещение и район подходят для вашего бизнеса
Что входит в отчёт
  • Охват населения
  • Пешеходный трафик
  • Автомобильный трафик
  • Средний бюджет семьи по району
  • Арендные ставки рядом
  • Точки притяжения
  • Конкуренты в радиусе 1 км
  • Рекомендации по выбору места для бизнеса
Сдаётся в долгосрочную аренду помещение 74,7 кв.м. в престижном Центральном районе Санкт-Петербурга, в 5 минутах ходьбы от станций метро Садовая, Сенная площадь, Спасская. - Высокий пешеходный трафик. - Доступ 24/7 - Мощность электросети 15 кВт. - Вода/канализация Идеально подходит под косметологические кабинеты, салон красоты, небольшой склад, торговый бизнес, общественное питание, офисное использование. Подробности по телефону. Звоните и записывайтесь на просмотр.
lock

Войдите или зарегистрируйтесь
для просмотра информации

Просматривайте условия сделки и всю информацию об объекте
Сохраняйте фильтры в поиске и не вводите заново
Доступ к избранному с любого устройства
Неограниченное добавление в избранное
Позвоните автору
Вам ответят на все вопросы
Остались вопросы по объявлению?
Позвоните владельцу объявления и уточните необходимую информацию.
  • Инфраструктура
  • Похожие рядом
  • Общая площадь74,7 м²
Естественная вентиляция
Центральное отопление
Помощь надёжных риелторов
Риелтор партнёр Циан поможет купить или продать любую недвижимость
80 000 ₽/мес.

Прямая аренда (от года), доступны арендные каникулы, предоплата за 1 месяц

1 073 $/мес.
912 /мес.
Цена за метр
12 852 ₽ в год
Налог
УСН
Комиссия
нет
Коммунальные платежи
не включены
Эксплуатационные расходы
не включены
Агентство недвижимости
Суперагент