Мы используем куки-файлы. Соглашение об использовании
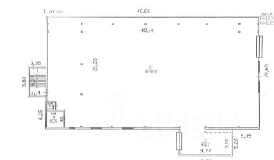
Площадь1 092 м²
Этаж1 из 1
Выс. потолков8.0 м.
ПомещениеСвободно
Отчёт о привлекательности объектаУзнайте, насколько помещение и район подходят для вашего бизнеса
Что входит в отчёт
  • Охват населения
  • Пешеходный трафик
  • Автомобильный трафик
  • Средний бюджет семьи по району
  • Арендные ставки рядом
  • Точки притяжения
  • Конкуренты в радиусе 1 км
  • Рекомендации по выбору места для бизнеса
Корпус 8 освобождается с 1 марта. Полностью готовое новое отдельное производственное здание 1092 кв.м. (1 этаж 898 кв.м. производственная часть; 2 этаж- 194 кв.м. офисно-бытовой блок). Электричество 400 кВт. Обеспыленный пол до 5 тонн на кв. метр. Кран-балка 5 тонн, потолки 8 метров. Два въезда, грузовые автоматических ворота на отметке 0 и на отметке 1,2 м. Все виды инженерно-технического оборудования (приточно-вытяжная вентиляция, система дымоудаления и АПС; узлы учёта водоснабжения, электрической и тепловой энергии). Парковка для легкового и малогрузного транспорта. Закрытый периметр с отдельным въездом, круглосуточной охраной и системой видеонаблюдения. В административном здании логопарка работает столовая и есть дополнительные офисные площади. Удобное расположение: до Таллинского шоссе и КАД 4 км. до Киевского и Пулковского шоссе 5 км. до трассы М11 Москва - 18 км. до аэропорта Пулково - 19 км. до морского порта 27 км. до метро Московская и Проспект Ветеранов - 10 км. (возле логопарка находится остановка общественного транспорта). *Стоимость указана с учетом НДС.
lock

Войдите или зарегистрируйтесь
для просмотра информации

Просматривайте условия сделки и всю информацию об объекте
Сохраняйте фильтры в поиске и не вводите заново
Доступ к избранному с любого устройства
Неограниченное добавление в избранное
Позвоните автору
Вам ответят на все вопросы
Остались вопросы по объявлению?
Позвоните владельцу объявления и уточните необходимую информацию.
  • Инфраструктура
  • Похожие рядом
  • Общая площадь1 092 м²
  • Статус участкаВ собственности
Приточная вентиляция
Центральное кондиционирование
Центральное отопление
Помощь надёжных риелторов
Риелтор партнёр Циан поможет купить или продать любую недвижимость
Управляющая компанияИндустриальный парк Альянс
  • Документы проверены
  • 1 год 5 месяцев на Циане
  • 19 объявлений
  • 1 201 200 ₽/мес.

    Прямая аренда (от года), минимальный срок аренды 11 месяцев, обеспечительный платёж 1201200 ₽, предоплата за 1 месяц

    16 104 $/мес.
    13 686 /мес.
    Цена за метр
    13 200 ₽ в год
    Налог
    НДС включен: 216 216 ₽
    Комиссия
    нет
    Коммунальные платежи
    не включены
    Эксплуатационные расходы
    не включены
    Управляющая компанияИндустриальный парк Альянс
    Документы проверены