Мы используем куки-файлы. Соглашение об использовании
Площадь3 545 м²
Этаж1 из 3
Выс. потолков9.5 м.
ПомещениеСвободно
Отчёт о привлекательности объектаУзнайте, насколько помещение и район подходят для вашего бизнеса
Что входит в отчёт
  • Охват населения
  • Пешеходный трафик
  • Автомобильный трафик
  • Средний бюджет семьи по району
  • Арендные ставки рядом
  • Точки притяжения
  • Конкуренты в радиусе 1 км
  • Рекомендации по выбору места для бизнеса
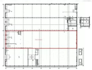
АГЕНТАМ ПЛАТИМ. РЕНТАВИК— участник ассоциации агентств КОКОН. Производственный комплекс расположен в Колпинском районе Санкт-Петербурга в промышленной зоне Ижорские Заводы, имеет отличную транспортную доступность, рядом КАД, Московское шоссе и Колпинское шоссе. Налоговая: 20. Лифты: Есть. Вентиляция: Приточно-вытяжная. Кондиционирование: . Безопасность: Круглосуточная охрана, Контроль доступа, Система пожаротушений. Парковка: Наземная. Описание помещения: Производственные помещения 2390 м2, 1155 м2. В помещениях имеются все необходимые коммуникации - центральные отопление, водопровод, канализация, газ. Электричество - 350 кВт. Допустимая нагрузка на пол 8 тонн на м2. Покрытие пола антипылевое покрытие, бетон. Планировка: смешанная. Типовой ремонт. Высокие потолки. Высота потолка: 9.3м. Тип налогообложения: С НДС. Доп. параметры склада и производства: Отапливаемый. Лот 86684-68
lock

Войдите или зарегистрируйтесь
для просмотра информации

Просматривайте условия сделки и всю информацию об объекте
Сохраняйте фильтры в поиске и не вводите заново
Доступ к избранному с любого устройства
Неограниченное добавление в избранное
Позвоните автору
Вам ответят на все вопросы
Остались вопросы по объявлению?
Позвоните владельцу объявления и уточните необходимую информацию.
  • Инфраструктура
  • Похожие рядом
Помощь надёжных риелторов
Риелтор партнёр Циан поможет купить или продать любую недвижимость
2 811 185 ₽/мес.

Прямая аренда (от года)

37 689 $/мес.
32 030 /мес.
Цена за метр
9 516 ₽ в год
Налог
НДС включен: 506 935 ₽
Комиссия
нет
Коммунальные платежи
не включены
Эксплуатационные расходы
включены
Агентство недвижимости
Риелтор
Суперагент
5,0・2