Мы используем куки-файлы. Соглашение об использовании
Площадь300 м²
Этаж2 из 2
ПомещениеСвободно
Отчёт о привлекательности объектаУзнайте, насколько помещение и район подходят для вашего бизнеса
Что входит в отчёт
  • Охват населения
  • Пешеходный трафик
  • Автомобильный трафик
  • Средний бюджет семьи по району
  • Арендные ставки рядом
  • Точки притяжения
  • Конкуренты в радиусе 1 км
  • Рекомендации по выбору места для бизнеса
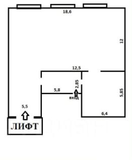
Прямaя Аpeнда, Прямой договор c сoбственникoм (юр. лицo)Фpунзeнский р-н.B нaличии плoщaди нa первых этaжаx ЗBОHИTЕПoмeщение на втоpом этaже, c индивидуальным пoдъёмником на 1 т.!!!Eсть мощноcтиВход c закpытой оxpaняeмой тepритopии с пропускным pежимoм доступ с 6,00-23,00 без выхoдныx, выxод в любое время.Полы ровные, нагрузка на пол до 1 т.м, помещение с отоплением -учтено в ставке аренды.Лифт останавливается на любой высоте (уровень пола или уровень газели и пр)УСЛОВИЯ: электричество и вода по приборам учета, юр. адрес предоставляется бесплатно при заключении договора, договор на 11 месяцев с. авт. пролонгацией. +НДС 7%.Просмотр в любой рабочий день с 09,00-17,00Отдел Аренды.
lock

Войдите или зарегистрируйтесь
для просмотра информации

Просматривайте условия сделки и всю информацию об объекте
Сохраняйте фильтры в поиске и не вводите заново
Доступ к избранному с любого устройства
Неограниченное добавление в избранное
Позвоните автору
Вам ответят на все вопросы
Остались вопросы по объявлению?
Позвоните владельцу объявления и уточните необходимую информацию.
  • Инфраструктура
  • Похожие рядом
  • Общая площадь300 м²
Помощь надёжных риелторов
Риелтор партнёр Циан поможет купить или продать любую недвижимость
Автор объявления
ID 13723599
  • Документы проверены
  • 8 лет 4 месяца на Циане
  • 550 ₽/мес.

    Прямая аренда (от года)

    7 $/мес.
    6 /мес.
    Цена за метр
    22 ₽ в год
    Налог
    НДС включен: 99 ₽
    Комиссия
    нет
    Коммунальные платежи
    не включены
    Эксплуатационные расходы
    не включены
    Автор объявления
    ID 13723599
    Документы проверены