Мы используем куки-файлы. Соглашение об использовании
Обновлено: вчера, 05:10
В объявлениях автора могут быть неактуальные объекты
 
Площадь196 м²
Этаж3 из 8
Парковка21 место
ПомещениеСвободно
КлассA
Отчёт о привлекательности объектаУзнайте, насколько помещение и район подходят для вашего бизнеса
Что входит в отчёт
  • Охват населения
  • Пешеходный трафик
  • Автомобильный трафик
  • Средний бюджет семьи по району
  • Арендные ставки рядом
  • Точки притяжения
  • Конкуренты в радиусе 1 км
  • Рекомендации по выбору места для бизнеса
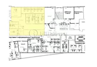
В аренду предлагается офисный блок площадью 196 м.кв. Расположен на третьем этаже Бизнес-Центра. Кабинетная планировка: просторный холл, шесть кабинетов, санузел. В хорошем состоянии. Выполнена современная офисная отделка: стены - покраска, напольное покрытие - ламинат, зонирование пространства - стеклянными перегородками (с матовым стеклом). Деловой комплекс оборудован в соответствии с современными стандартами качества. Объект оснащен инженерными системами и коммуникациями, системой кондиционирования и приточно-вытяжной вентиляцией воздуха. Для удобства автомобилистов в БЦ предусмотрен паркинг. Расположен в центре города между ст. м. Спортивная и м. Горьковская. Готово к въезду. Договор аренды напрямую с собственником. Без скрытых комиссий и платежей.
lock

Войдите или зарегистрируйтесь
для просмотра информации

Просматривайте условия сделки и всю информацию об объекте
Сохраняйте фильтры в поиске и не вводите заново
Доступ к избранному с любого устройства
Неограниченное добавление в избранное
Позвоните автору
Вам ответят на все вопросы
Остались вопросы по объявлению?
Позвоните владельцу объявления и уточните необходимую информацию.
  • Инфраструктура
  • Похожие рядом
Помощь надёжных риелторов
Риелтор партнёр Циан поможет купить или продать любую недвижимость
588 000 ₽/мес.

Прямая аренда (от года), минимальный срок аренды 11 месяцев, обеспечительный платёж 588000 ₽

7 785 $/мес.
6 660 /мес.
Цена за метр
36 000 ₽ в год
Налог
НДС включен: 105 840 ₽
Комиссия
нет
Коммунальные платежи
включены
Эксплуатационные расходы
не включены
Агентство недвижимости
Документы проверены
На Циан
9 лет
Объектов в работе
369