Мы используем куки-файлы. Соглашение об использовании
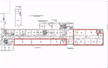
Площадь619 м²
Этаж2 из 7
ПомещениеСвободно
КлассC
Отчёт о привлекательности объектаУзнайте, насколько помещение и район подходят для вашего бизнеса
Что входит в отчёт
  • Охват населения
  • Пешеходный трафик
  • Автомобильный трафик
  • Средний бюджет семьи по району
  • Арендные ставки рядом
  • Точки притяжения
  • Конкуренты в радиусе 1 км
  • Рекомендации по выбору места для бизнеса
РАБОТАЕМ С АГЕНТАМИ И ПЛАТИМ! РЕНТАВИК— участник ассоциации агентств КОКОН. Бизнес- центр Левашовский расположен по адресу Левашовский проспект 12 в Санкт-Петербурге. Здание находится в шаговой доступности от станции метро- Чкаловская и в трех минутах езды на транспорте от метро- Петроградская. Налоговая: 25. Лифты: Есть. Вентиляция: Естественная. Кондиционирование: Сплит-системы. Безопасность: Контроль доступа, Система пожаротушений, Видеонаблюдение. Парковка: Наземная. Описание помещения: Помещение имеет отличные видовые характеристики, отделка офиса стандартная- -стены обои под покраску, потолок подвесной типа Армстронг, полы - ламинат. Мощность электросети 15 кВт. Планировка: смешанная. Офисная отделка. Высота потолка: 3.5м. Тип налогообложения: С НДС. Лот 86810-68
lock

Войдите или зарегистрируйтесь
для просмотра информации

Просматривайте условия сделки и всю информацию об объекте
Сохраняйте фильтры в поиске и не вводите заново
Доступ к избранному с любого устройства
Неограниченное добавление в избранное
Позвоните автору
Вам ответят на все вопросы
Остались вопросы по объявлению?
Позвоните владельцу объявления и уточните необходимую информацию.
  • Инфраструктура
  • Похожие рядом
Помощь надёжных риелторов
Риелтор партнёр Циан поможет купить или продать любую недвижимость
1 362 680 ₽/мес.

Прямая аренда (от года)

17 910 $/мес.
15 241 /мес.
Цена за метр
26 418 ₽ в год
Налог
НДС включен: 245 729 ₽
Комиссия
нет
Коммунальные платежи
включены
Эксплуатационные расходы
включены
Агентство недвижимости
Риелтор
Суперагент
5,0・2