Мы используем куки-файлы. Соглашение об использовании
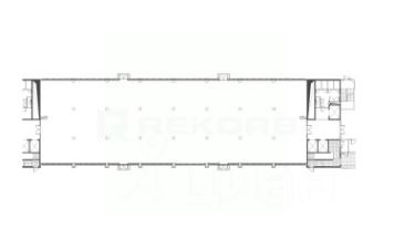
Площади704 – 14 000 м²
Этаж1 из 14
Парковка970 мест
ПомещениеСвободно
КлассA
Отчёт о привлекательности объектаУзнайте, насколько помещение и район подходят для вашего бизнеса
Что входит в отчёт
  • Охват населения
  • Пешеходный трафик
  • Автомобильный трафик
  • Средний бюджет семьи по району
  • Арендные ставки рядом
  • Точки притяжения
  • Конкуренты в радиусе 1 км
  • Рекомендации по выбору места для бизнеса
Доступно 7 площадей
704 м²
14 этаж
2 496 384 ₽/мес.
42 552 ₽/м² в год
1120 м²
7 этаж
3 971 520 ₽/мес.
42 552 ₽/м² в год
2240 м²
7 и 8 этаж
7 943 040 ₽/мес.
42 552 ₽/м² в год
3059 м²
4 - 6 этаж
10 847 214 ₽/мес.
42 552 ₽/м² в год
5299 м²
4 - 8 этаж
18 790 254 ₽/мес.
42 552 ₽/м² в год
Сдаются в аренду помещения в бизнес-центре класса А. Отличное решение для представительского офиса. Бизнес-центр расположен в Московском районе и находится в 25 минутах на транспорте от метро Московская. Здание построено в 2009 году, оснащено всеми необходимыми инженерными системами, в том числе приточно-вытяжной вентиляцией и кодиционированием. Адрес: Санкт-Петербург, ул. Внуковская д. 2, лит. А. Ближайшее метро: Московская. Арендная ставка: 3 546 руб/м2 в мес. включая НДС отдельно оплачиваются коммунальные услуги, электричество, OPEX, уборка Характеристики помещения: Планировка: смешанная Телекоммуникации: интернет, wi-fi и телефонная линия Вентиляция: приточно-вытяжная Кондиционирование: центральное Характеристики бизнес-центра: Общая площадь: 76 000 м2 Этажность: 14 Парковка: 970 машино-мест по 6 100 руб. в мес. Пассажирские лифты: 12 шт. Грузовые лифты: 6 шт. Пропускная система: есть Инфраструктура: банкомат, кафе, ресторан, отделение банка, фитнес-клуб Договор аренды заключается напрямую с собственником бизнес-центра. Какие-либо дополнительные проценты и комиссии отсутствуют. Звоните, мы покажем помещение в любое удобное для вас время.
lock

Войдите или зарегистрируйтесь
для просмотра информации

Просматривайте условия сделки и всю информацию об объекте
Сохраняйте фильтры в поиске и не вводите заново
Доступ к избранному с любого устройства
Неограниченное добавление в избранное
Позвоните автору
Вам ответят на все вопросы
Остались вопросы по объявлению?
Позвоните владельцу объявления и уточните необходимую информацию.
  • Инфраструктура
  • Похожие рядом

Пулково Скай

  • Год постройки2009
  • Тип зданияБизнес-центр
  • Категория зданияДействующее
  • Площадь участка1,24 га
  • Общая площадь50 657,4 м²
  • Статус участкаВ собственности
Приточная вентиляция
Центральное кондиционирование
Автономное отопление
Спринклерная система пожаротушения
Помощь надёжных риелторов
Риелтор партнёр Циан поможет купить или продать любую недвижимость
2 496 384 – 49 644 000 ₽/мес.

Прямая аренда (от года), минимальный срок аренды 11 месяцев, предоплата за 1 месяц

от 33 088 до 658 000 $/мес.
от 28 160 до 560 000 €/мес.
Цена за метр
от 42 552 ₽ в год
Налог
НДС включен: 8 952 196 ₽
Комиссия
нет
Коммунальные платежи
не включены
Эксплуатационные расходы
не включены
Агентство недвижимости
Суперагент
На Циан
7 лет
Объектов в работе
351