Мы используем куки-файлы. Соглашение об использовании
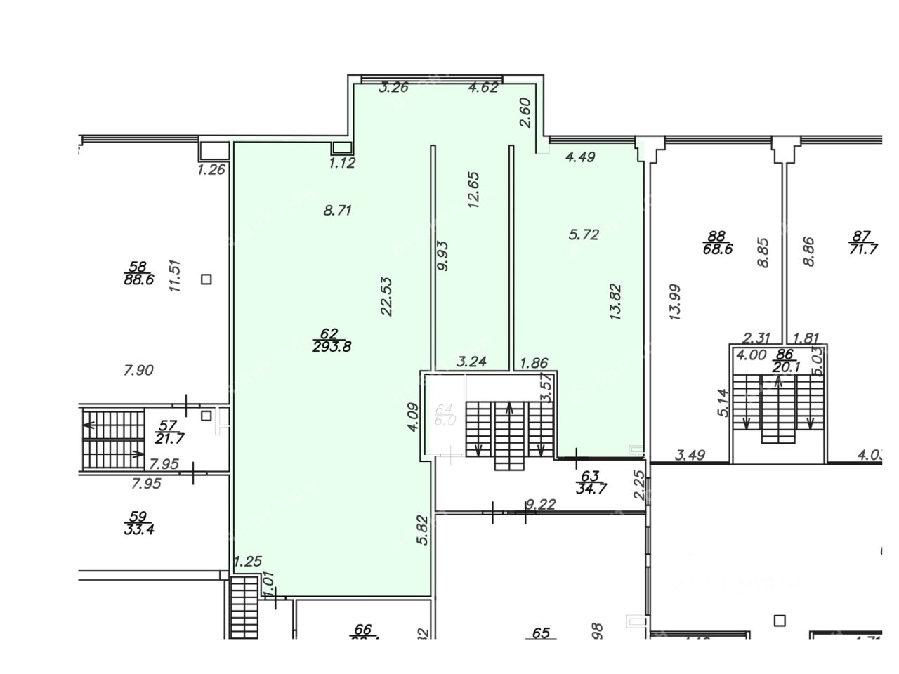
Площадь293,8 м²
Этаж2 из 8
Парковка150 мест
КлассB+
Отчёт о привлекательности объектаУзнайте, насколько помещение и район подходят для вашего бизнеса
Что входит в отчёт
  • Охват населения
  • Пешеходный трафик
  • Автомобильный трафик
  • Средний бюджет семьи по району
  • Арендные ставки рядом
  • Точки притяжения
  • Конкуренты в радиусе 1 км
  • Рекомендации по выбору места для бизнеса
Офисное помещение 293.8 кв. м в бизнес-центре "Александровский". Район: Центральный. Ближайшие станции метро: Площадь Александра Невского-1, Площадь Александра Невского-2. Характеристики: - Класс: B+; - Арендопригодная площадь: 3000; - Код налоговой: 42; - Размер типового этажа: 1030; - Высота потолков: 2.9 м, 6 м; - Наличие лифта: Есть; - Кол-во мест наземного паркинга: 150; - Интернет-провайдеры: Смарт Телеком; - Шаг колонн: 66 м; - Кол-во мест в закрытом паркинге: 1. Арендная ставка: 3 100 руб./кв. м в месяц. Финансовые условия: - В стоимость включено: OPEX, Коммунальные услуги, НДС; - Оплачивается отдельно: Интернет, Телефония, Уборка, Электроэнергия; - Налог: Включая НДС. Без комиссии и скрытых платежей для арендатора. Готовы оперативно организовать просмотр в удобное время, предоставить PDF-презентацию и план. Точное местоположение объекта можно найти по данным координатам: 59.927081,30.383541 ID = c_1791503
lock

Войдите или зарегистрируйтесь
для просмотра информации

Просматривайте условия сделки и всю информацию об объекте
Сохраняйте фильтры в поиске и не вводите заново
Доступ к избранному с любого устройства
Неограниченное добавление в избранное
Позвоните автору
Вам ответят на все вопросы
Остались вопросы по объявлению?
Позвоните владельцу объявления и уточните необходимую информацию.
  • Инфраструктура
  • Похожие рядом
Помощь надёжных риелторов
Риелтор партнёр Циан поможет купить или продать любую недвижимость
РиелторBright Rich St Petersburg
Документы проверены
910 780 ₽/мес.

Прямая аренда (от года), минимальный срок аренды 11 месяцев, доступны арендные каникулы, предоплата за 1 месяц

12 059 $/мес.
10 317 /мес.
Цена за метр
37 200 ₽ в год
Налог
НДС включен: 164 235 ₽
Комиссия
нет
Коммунальные платежи
включены
Эксплуатационные расходы
включены
Агентство недвижимости
Документы проверены
На Циан
8 лет
Объектов в работе
930