Мы используем куки-файлы. Соглашение об использовании
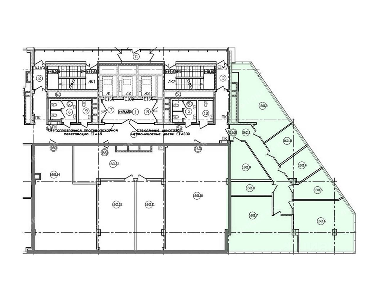
Площадь170 м²
Этаж16 из 19
Парковка93 места
КлассB+
Отчёт о привлекательности объектаУзнайте, насколько помещение и район подходят для вашего бизнеса
Что входит в отчёт
  • Охват населения
  • Пешеходный трафик
  • Автомобильный трафик
  • Средний бюджет семьи по району
  • Арендные ставки рядом
  • Точки притяжения
  • Конкуренты в радиусе 1 км
  • Рекомендации по выбору места для бизнеса
Офисное помещение 170 кв. м в бизнес-центре Pulkovo Star. Район: Московский. Ближайшие станции метро: Звёздная. Характеристики: - Класс: B+; - Арендопригодная площадь: 11155.8; - Код налоговой: 10; - Размер типового этажа: 820-1000; - Нагрузка на перекрытия: 450; - Высота потолков: 3 м; - Наличие лифта: Есть; - Кол-во мест подземного паркинга: 93; - Интернет-провайдеры: Северен-Телеком; - Шаг колонн: 7.2x5.6 м. Арендная ставка: 2 300 руб./кв. м в месяц. Финансовые условия: - В стоимость включено: OPEX, Коммунальные услуги, НДС; - Оплачивается отдельно: Интернет, Телефония, Уборка, Электроэнергия; - Налог: Включая НДС. Без комиссии и скрытых платежей для арендатора. Готовы оперативно организовать просмотр в удобное время, предоставить PDF-презентацию и план. Точное местоположение объекта можно найти по данным координатам: 59.825628,30.326120 ID = c_1791825
lock

Войдите или зарегистрируйтесь
для просмотра информации

Просматривайте условия сделки и всю информацию об объекте
Сохраняйте фильтры в поиске и не вводите заново
Доступ к избранному с любого устройства
Неограниченное добавление в избранное
Позвоните автору
Вам ответят на все вопросы
Остались вопросы по объявлению?
Позвоните владельцу объявления и уточните необходимую информацию.
  • Инфраструктура
  • Похожие рядом
Помощь надёжных риелторов
Риелтор партнёр Циан поможет купить или продать любую недвижимость
РиелторBright Rich St Petersburg
Суперагент
391 000 ₽/мес.

Прямая аренда (от года), минимальный срок аренды 11 месяцев, доступны арендные каникулы, предоплата за 1 месяц

5 227 $/мес.
4 449 /мес.
Цена за метр
27 600 ₽ в год
Налог
НДС включен: 70 380 ₽
Комиссия
нет
Коммунальные платежи
включены
Эксплуатационные расходы
включены
Агентство недвижимости
На Циан
8 лет
Объектов в работе
920
Риелтор
Суперагент