Мы используем куки-файлы. Соглашение об использовании
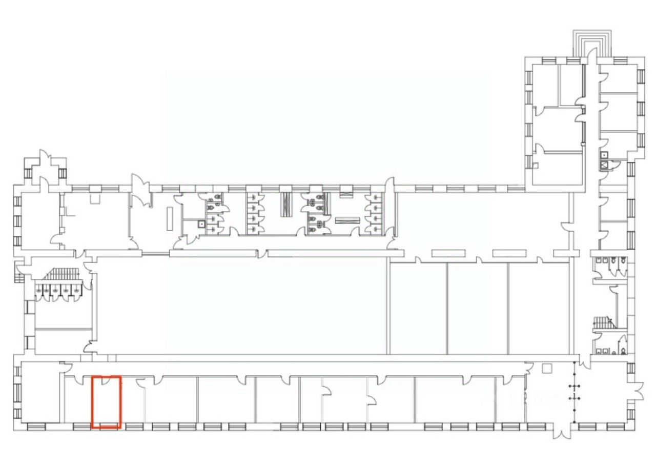
Площадь14 м²
Этаж1 из 2
ПомещениеСвободно
КлассC
Отчёт о привлекательности объектаУзнайте, насколько помещение и район подходят для вашего бизнеса
Что входит в отчёт
  • Охват населения
  • Пешеходный трафик
  • Автомобильный трафик
  • Средний бюджет семьи по району
  • Арендные ставки рядом
  • Точки притяжения
  • Конкуренты в радиусе 1 км
  • Рекомендации по выбору места для бизнеса
ID: 832582 Данный офис находится на 1 этаже отдельно стоящего 2-этажного офисного здания, рядом с производственно-складским комплексом. Здание имеет современное инженерное оснащение Доступ в здание круглосуточный Оборудованная парковка В шаговой доступности кафе Арендная ставка включает в себя НДС, коммунальные и эксплуатационные расходы, клининг. Без комиссии. Минимальный срок аренды 11 месяцев. Расположение: Красногвардейский район -5 км от КАД -15 минут езды от Свердловской набережной, станции метро "Ладожская" и Ладожского вокзала. Инфраструктура: столовая, парковки, спортивный зал
lock

Войдите или зарегистрируйтесь
для просмотра информации

Просматривайте условия сделки и всю информацию об объекте
Сохраняйте фильтры в поиске и не вводите заново
Доступ к избранному с любого устройства
Неограниченное добавление в избранное
Позвоните автору
Вам ответят на все вопросы
Остались вопросы по объявлению?
Позвоните владельцу объявления и уточните необходимую информацию.
  • Инфраструктура
  • Похожие рядом
Помощь надёжных риелторов
Риелтор партнёр Циан поможет купить или продать любую недвижимость
22 400 ₽/мес.

Прямая аренда (от года), минимальный срок аренды 11 месяцев

299 $/мес.
255 /мес.
Цена за метр
19 200 ₽ в год
Налог
НДС включен: 4 039 ₽
Комиссия
нет
Коммунальные платежи
включены
Эксплуатационные расходы
включены
Агентство недвижимости
Документы проверены