Мы используем куки-файлы. Соглашение об использовании
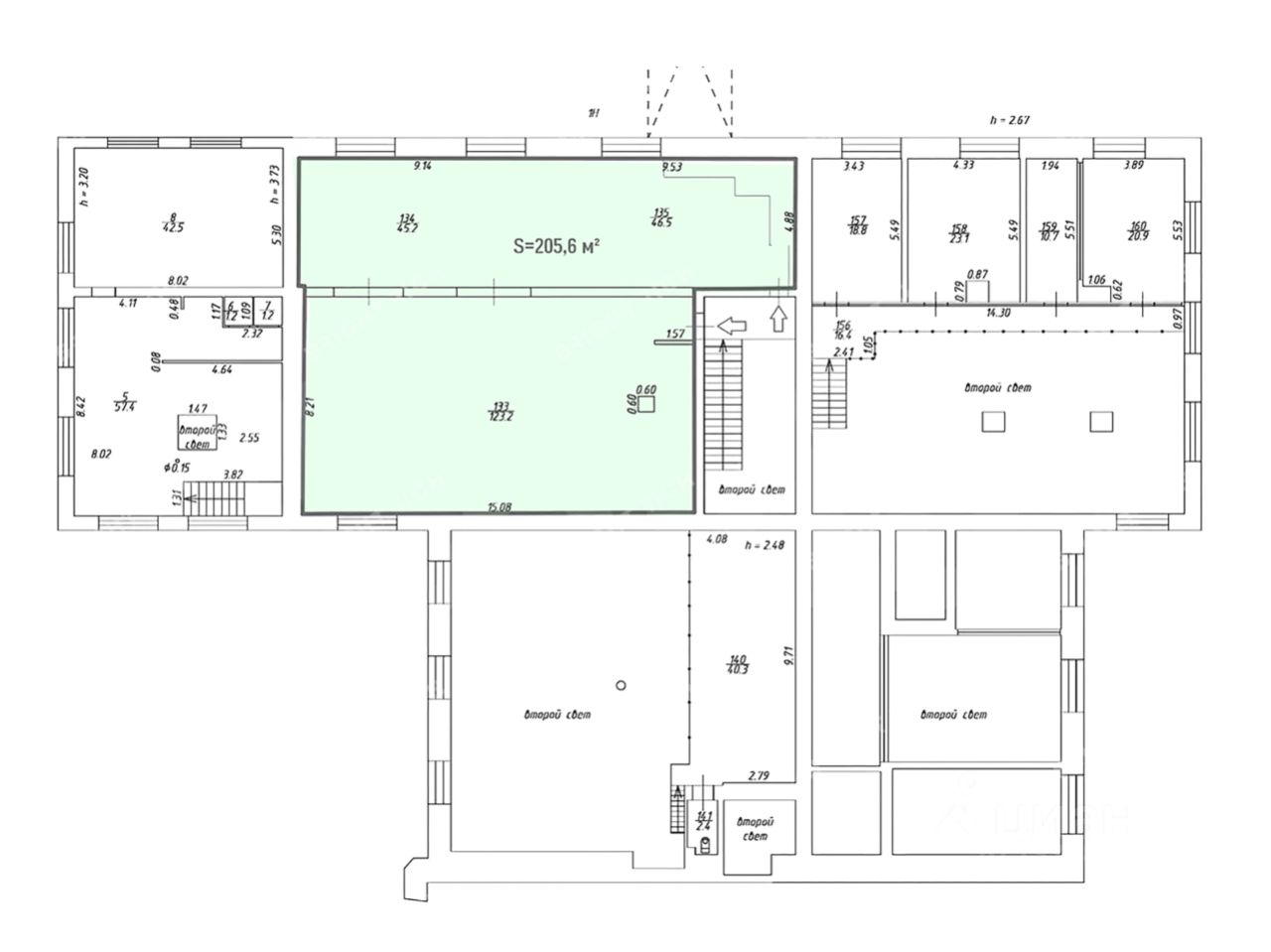
Площадь205,6 м²
Этаж2 из 4
Парковка260 мест
ПомещениеСвободно
КлассB
Отчёт о привлекательности объектаУзнайте, насколько помещение и район подходят для вашего бизнеса
Что входит в отчёт
  • Охват населения
  • Пешеходный трафик
  • Автомобильный трафик
  • Средний бюджет семьи по району
  • Арендные ставки рядом
  • Точки притяжения
  • Конкуренты в радиусе 1 км
  • Рекомендации по выбору места для бизнеса
Офисное помещение 205.6 кв. м в бизнес-центре "Новгородский". Район: Центральный. Ближайшие станции метро: Площадь Восстания, Площадь Александра Невского-1. Характеристики: - Класс: B; - Арендопригодная площадь: 13735.9; - Код налоговой: 42; - Высота потолков: 5 м; - Наличие лифта: Есть; - Кол-во мест наземного паркинга: 260; - Интернет-провайдеры: Смарт Телеком. Арендная ставка: 1 500 руб./кв. м в месяц. Финансовые условия: - Оплачивается отдельно: Коммунальные услуги, Телефония, Уборка, Интернет; - В стоимость включено: OPEX, НДС; - Налог: Включая НДС. Без комиссии и скрытых платежей для арендатора. Готовы оперативно организовать просмотр в удобное время, предоставить PDF-презентацию и план. Точное местоположение объекта можно найти по данным координатам: 59.936039,30.386363 ID = c_1791944
lock

Войдите или зарегистрируйтесь
для просмотра информации

Просматривайте условия сделки и всю информацию об объекте
Сохраняйте фильтры в поиске и не вводите заново
Доступ к избранному с любого устройства
Неограниченное добавление в избранное
Позвоните автору
Вам ответят на все вопросы
Остались вопросы по объявлению?
Позвоните владельцу объявления и уточните необходимую информацию.
  • Инфраструктура
  • Похожие рядом
Помощь надёжных риелторов
Риелтор партнёр Циан поможет купить или продать любую недвижимость
РиелторBright Rich St Petersburg
Документы проверены
308 400 ₽/мес.

Прямая аренда (от года), минимальный срок аренды 11 месяцев, доступны арендные каникулы, предоплата за 1 месяц

4 121 $/мес.
3 524 /мес.
Цена за метр
18 000 ₽ в год
Налог
НДС включен: 55 512 ₽
Комиссия
нет
Коммунальные платежи
не включены
Эксплуатационные расходы
включены
Агентство недвижимости
Документы проверены
На Циан
8 лет
Объектов в работе
973