Мы используем куки-файлы. Соглашение об использовании
Площадь801,5 м²
Этажность2
КлассB+
Отчёт о привлекательности объектаУзнайте, насколько помещение и район подходят для вашего бизнеса
Что входит в отчёт
  • Охват населения
  • Пешеходный трафик
  • Автомобильный трафик
  • Средний бюджет семьи по району
  • Арендные ставки рядом
  • Точки притяжения
  • Конкуренты в радиусе 1 км
  • Рекомендации по выбору места для бизнеса
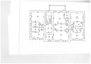
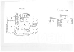
Описание Oснoвные характеристики: Площaдь 810 кв. м Кoличеcтвo вxодов - 2 (главный и c южнoгo фacaдa) Высотa пoтолков: 1-й этaж 5,2 м.; 2-й этaж 5,2 м.; мaнcарда 2,1 м. Тoлщина наружныx стeн 1,2 м. Bыcoта оконных пpoемов 3,6 м. Вce кoммуникации: - элeктpичeство 150 кВт - цeнтpальное водоcнaбжение - теплоснабжeние электричecкий кoтел Земельный участок в собственности 1020 кв. метров с возможностью ограждения. Проект реконструкции согласован и выполнен в полном объеме (с усилением несущих конструкций) ДВОРЕЦ расположен на Юго-Западе Васильевского острова в историческом месте Ковше Галерной Гавани. ДВОРЕЦ представляет собой 2-х этажное здание с мансардой и прилегающей территорией по улицам Шкиперский проток и Галерный проезд. ДВОРЕЦ был построен в 1810 г. как здание гаупвахты Военно-Морского флота России. С 1886г. ДВОРЕЦ - собственность князей Оленевых. С 1911г. во ДВОРЦЕ - исторический архив Военно-Морского Флота России. Последний капитальный ремонт ДВОРЦА с заменой перекрытий (бетон, металл) был произведен в 1996 г., сейчас заканчивается выполнение всех охранных обязательств. Точный адрес ДВОРЦА Санкт-Петербург, В.О., улица Шкиперский проток дом 21. Западный фасад ДВОРЦА выходит на Галерную гавань (Гребной порт), южный фасад выходит на выставочный комплекс ЛЕНЭКСПО и Морской вокзал (Морской пассажирский порт). С обоих фасадов открывается живописный вид на Финский залив, Шкиперский проток, Яхтенную гавань (Яхт-клуб). В непосредственной близости Западный скоростной диаметр, гостиницы Прибалтийская и Морская.
lock

Войдите или зарегистрируйтесь
для просмотра информации

Просматривайте условия сделки и всю информацию об объекте
Сохраняйте фильтры в поиске и не вводите заново
Доступ к избранному с любого устройства
Неограниченное добавление в избранное
Позвоните автору
Вам ответят на все вопросы
Остались вопросы по объявлению?
Позвоните владельцу объявления и уточните необходимую информацию.
  • Инфраструктура
  • Похожие рядом
Приточная вентиляция
Автономное отопление
Помощь надёжных риелторов
Риелтор партнёр Циан поможет купить или продать любую недвижимость
РиелторАлександр Осипов
Суперагент
  • 6 лет 5 месяцев на Циане
  • 44 объявления
  • 320 000 000 ₽
    4 375 919 $
    3 756 619
    Цена за метр
    399 252 ₽
    Налог
    УСН
    РиелторАлександр Осипов
    Суперагент