Мы используем куки-файлы. Соглашение об использовании
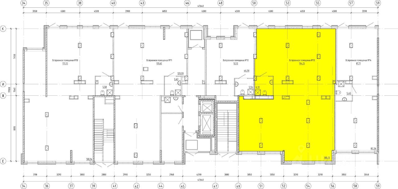
Помещение свободного назначения, 194,25 м²
Площадь194,25 м²
Этаж1 из 12
Отчёт о привлекательности объектаУзнайте, насколько помещение и район подходят для вашего бизнеса
Что входит в отчёт
  • Охват населения
  • Пешеходный трафик
  • Автомобильный трафик
  • Средний бюджет семьи по району
  • Арендные ставки рядом
  • Точки притяжения
  • Конкуренты в радиусе 1 км
  • Рекомендации по выбору места для бизнеса
Продается помещение свободного назначения в UP-квартале "Воронцовский". Прямая продажа от застройщика. Квартал "Воронцовский" - жилой комплекс класса комфорт+ в Новом Девяткино. В составе комплекса: 3 корпуса по 12 этажей - на 1 900 квартир. Комплекс расположен в обжитом районе по соседству с уже заселенными многоквартирными домами, что дополнительно увеличивает потенциальный пешеходный трафик. Преимущества помещения: - Безбарьерный вход на уровне земли - Большие витринные окна - Открытая планировка. Гибкие возможности кастомизации помещения под ваши задачи. - Возможность объединения с соседними помещениями - Высота потолков до 3,7 - Подведены все инженерные коммуникации - Оптимальная мощность электроснабжения - Возможность размещения рекламной вывески - Место для установки кондиционеров
lock

Войдите или зарегистрируйтесь
для просмотра информации

Просматривайте условия сделки и всю информацию об объекте
Сохраняйте фильтры в поиске и не вводите заново
Доступ к избранному с любого устройства
Неограниченное добавление в избранное
Позвоните автору
Вам ответят на все вопросы
Остались вопросы по объявлению?
Позвоните владельцу объявления и уточните необходимую информацию.
  • Инфраструктура
  • Похожие рядом
  • Тип зданияОтдельно стоящее здание
  • Общая площадь194,25 м²
Естественная вентиляция
Гидрантная система пожаротушения
Помощь надёжных риелторов
Риелтор партнёр Циан поможет купить или продать любую недвижимость
36 943 922 ₽
489 721 $
418 557
Цена за метр
190 188 ₽
Налог
НДС не включен
Агентство недвижимости
ID 129617406
Документы проверены
Риелтор