Мы используем куки-файлы. Соглашение об использовании
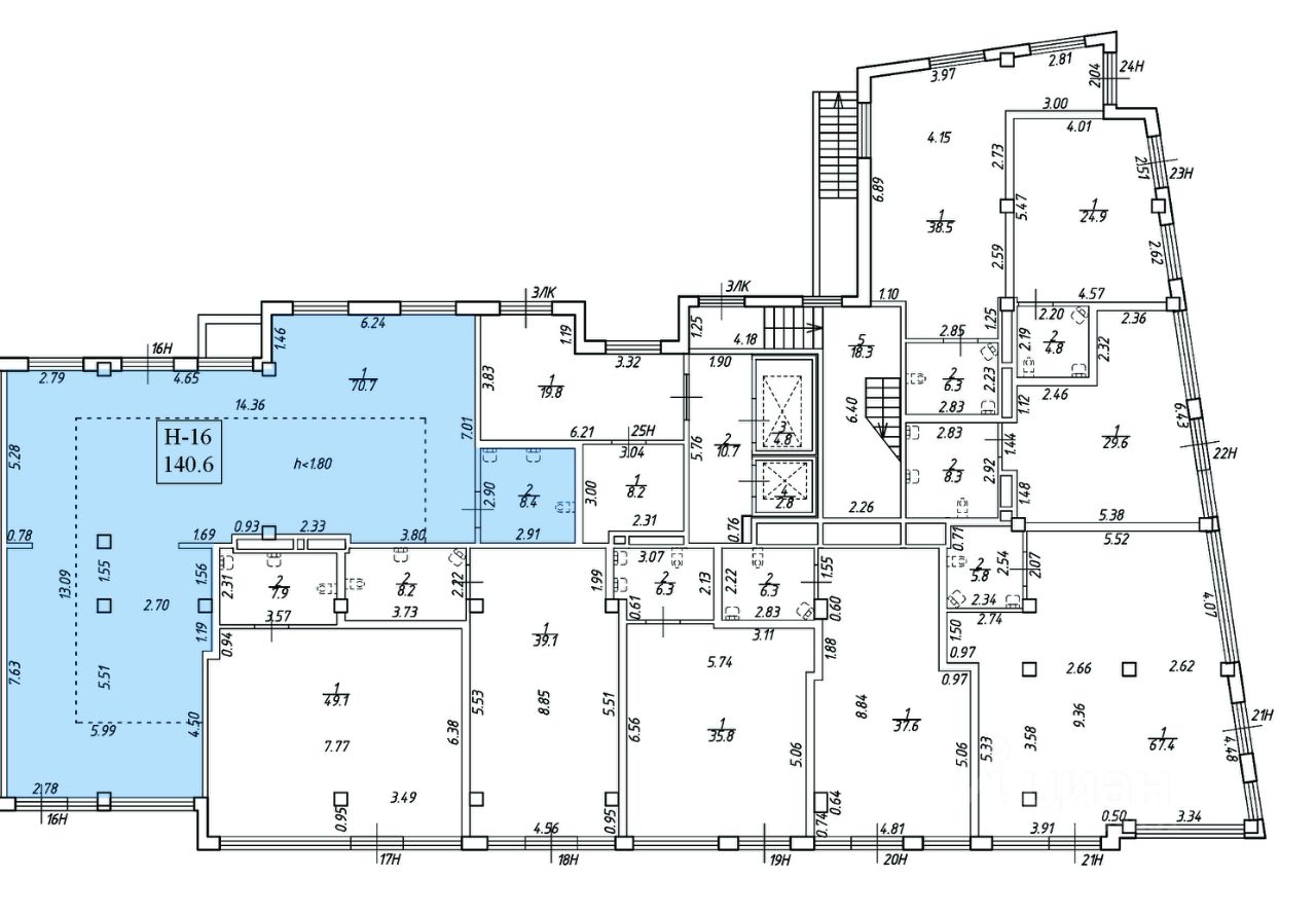
Помещение свободного назначения, 140,6 м²
Площадь140,6 м²
Этаж1 из 12
Отчёт о привлекательности объектаУзнайте, насколько помещение и район подходят для вашего бизнеса
Что входит в отчёт
  • Охват населения
  • Пешеходный трафик
  • Автомобильный трафик
  • Средний бюджет семьи по району
  • Арендные ставки рядом
  • Точки притяжения
  • Конкуренты в радиусе 1 км
  • Рекомендации по выбору места для бизнеса
Помещение свободного назначения класса "бизнес" 140.6 м² в ЖК "Айди Мурино II (ID Murino II)" с выдержанными фасадами и превосходным витражным остеклением и современной инженерией. Каждому коммерческому помещению выделена зона для стилизованной вывески. Каждое помещение оборудовано индивидуальным вентиляционным каналом. Высота потолков 4,5 метра. Выделенная мощность 0,2 КВт на 1 метр квадратный.
lock

Войдите или зарегистрируйтесь
для просмотра информации

Просматривайте условия сделки и всю информацию об объекте
Сохраняйте фильтры в поиске и не вводите заново
Доступ к избранному с любого устройства
Неограниченное добавление в избранное
Позвоните автору
Вам ответят на все вопросы
Остались вопросы по объявлению?
Позвоните владельцу объявления и уточните необходимую информацию.
  • Инфраструктура
  • Похожие рядом
  • Общая площадь140,6 м²
Помощь надёжных риелторов
Риелтор партнёр Циан поможет купить или продать любую недвижимость
29 526 000 ₽
397 409 $
333 443
Цена за метр
210 000 ₽
Налог
НДС включен: 5 324 360 ₽
Документы проверены