Мы используем куки-файлы. Соглашение об использовании
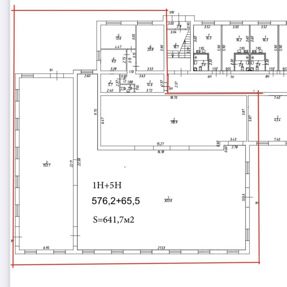
Помещение свободного назначения, 641,7 м²

Продается помещение свободного назначения, 641,7 м²

Площадь641,7 м²
Этаж1 из 1
Отчёт о привлекательности объектаУзнайте, насколько помещение и район подходят для вашего бизнеса
Что входит в отчёт
  • Охват населения
  • Пешеходный трафик
  • Автомобильный трафик
  • Средний бюджет семьи по району
  • Арендные ставки рядом
  • Точки притяжения
  • Конкуренты в радиусе 1 км
  • Рекомендации по выбору места для бизнеса
Продается помещение свободного назначения с 3-я отдельными входами, с 2-я подъездами для автотранспорта, расположенное в одноэтажной пристройке 5-этажного апарт-отеля с помещениями социального и сервисного обслуживания, объектов инфраструктуры вспомогательного, социального и коммунально-бытового назначения, включая гостиничный комплекс на земельном участке площадью 6647 кв.м. Высота одноэтажной пристройки 5,5 м. В здании проведен капремонт. Коммуникации: - система электроснабжения мощностью 50 кВт, II категории; - система холодного и горячего водоснабжения, водоотведения; - система отопления 0,72 Гкал/час. Земельный участок в собственности, категория - земли населенных пунктов, вид разрешенного использования- для размещения объектов гостиничного обслуживания, социального и сервисного обслуживания, объектов инфраструктуры вспомогательного, социального и коммунально-бытового назначения, магазины. Документы готовы, быстрый выход на сделку. Просмотры в любое удобное для вас время.
lock

Войдите или зарегистрируйтесь
для просмотра информации

Просматривайте условия сделки и всю информацию об объекте
Сохраняйте фильтры в поиске и не вводите заново
Доступ к избранному с любого устройства
Неограниченное добавление в избранное
Позвоните автору
Вам ответят на все вопросы
Остались вопросы по объявлению?
Позвоните владельцу объявления и уточните необходимую информацию.
  • Инфраструктура
  • Похожие рядом
  • Площадь участка0 сот.
  • Общая площадь641,7 м²
Центральное отопление
Помощь надёжных риелторов
Риелтор партнёр Циан поможет купить или продать любую недвижимость
128 340 000 ₽
1 754 753 $
1 487 312
Цена за метр
200 000 ₽
Налог
УСН
Агентство недвижимости
Риелтор
Суперагент
5,0・29