Мы используем куки-файлы. Соглашение об использовании
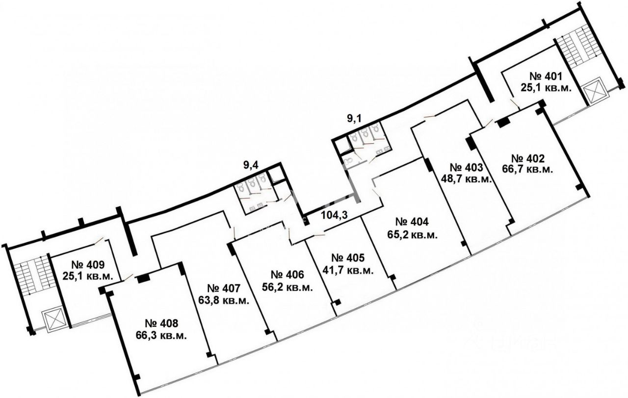
Площадь581,6 м²
Этаж4 из 6
ПомещениеСвободно
КлассB+
Отчёт о привлекательности объектаУзнайте, насколько помещение и район подходят для вашего бизнеса
Что входит в отчёт
  • Охват населения
  • Пешеходный трафик
  • Автомобильный трафик
  • Средний бюджет семьи по району
  • Арендные ставки рядом
  • Точки притяжения
  • Конкуренты в радиусе 1 км
  • Рекомендации по выбору места для бизнеса
Арт. 119950560 Предлагаем к продаже офисное помещение, общей площадью 581.6 м.кв, в многофункциональном деловом центре "Гранд Капитал". Офис с правильной планировкой помещений и качественным ремонтом, расположен на 4 этаже и занимает весь этаж корпуса. В данный момент офисы на 100% загружены арендаторами, возможна продажа как с арендаторами, так и без них!!!! Офис состоит из 9 помещений и двух сан.узлов. Офис оснащен всеми необходимыми коммуникациями для ведения эффективной хозяйственной деятельности организации, есть электричество, горячее и холодное водоснабжение. Офисные помещения разделены шумоизоляционными перегородками толщиной 25 см, установлены дорогие, качественные шумоизоляционные двери. Офис оборудован структурированной кабельной системой (СКС) и имеет подключение к интернету со скоростью до 1 Гбит/с. Круглосуточный и без выходных доступ к помещению. Вход с улицы Матроса Железняка. Парковка перед входом на прилегающей территории БЦ, также в доме есть подземный паркинг на 100 машиномест. Доступ в офис и бизнес-центр осуществляется по электронным картам. До 6 этажа сотрудников перевозит пассажирский лифт. В бизнес-центре функционируют кафе, ресторан, конференц-зал. Удобное расположение офиса, до ст. метро Пионерская 15 минут пешком. Важный нюанс, данный офис НЕ ОБЛАГАЕТСЯ налогом на имущество, а также нет оплаты за аренду земельного участка, на котором расположено здание!!! Документы готовы. Полная стоимость в договоре. Собственник физическое лицо, более 5 лет. Возможно увеличение площади офиса на 536.7 м.кв. По всем вопросам звоните в удобное для вас время!
lock

Войдите или зарегистрируйтесь
для просмотра информации

Просматривайте условия сделки и всю информацию об объекте
Сохраняйте фильтры в поиске и не вводите заново
Доступ к избранному с любого устройства
Неограниченное добавление в избранное
Позвоните автору
Вам ответят на все вопросы
Остались вопросы по объявлению?
Позвоните владельцу объявления и уточните необходимую информацию.
  • Инфраструктура
  • Похожие рядом
Помощь надёжных риелторов
Риелтор партнёр Циан поможет купить или продать любую недвижимость
95 000 000 ₽
1 262 717 $
1 070 661
Цена за метр
163 343 ₽
Налог
НДС не включен
Агентство недвижимости
Документы проверены