Мы используем куки-файлы. Соглашение об использовании
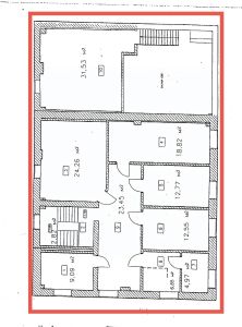
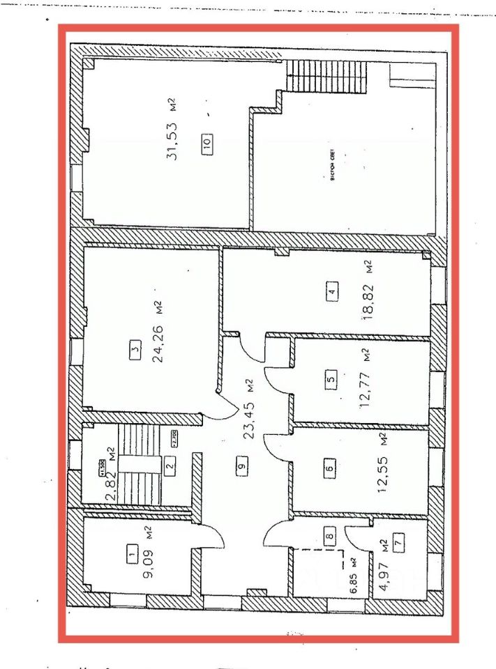
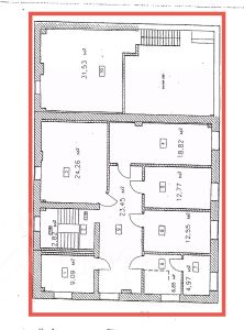
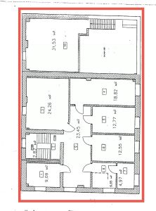
Площадь603 м²
Этажность2
КлассB+
Отчёт о привлекательности объектаУзнайте, насколько помещение и район подходят для вашего бизнеса
Что входит в отчёт
  • Охват населения
  • Пешеходный трафик
  • Автомобильный трафик
  • Средний бюджет семьи по району
  • Арендные ставки рядом
  • Точки притяжения
  • Конкуренты в радиусе 1 км
  • Рекомендации по выбору места для бизнеса
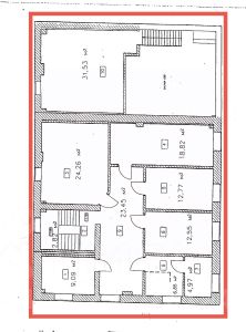
К продаже предлагается отдельно стоящее кирпичное здание в Невском районе. Общая площадь 603 м², два этажа. Земельный участок 1265 кв м в аренде до 2048 года. На первом и втором этажах — кабинетная офисная планировка. Пристроен теплый склад с отдельным входом и двумя автоматическими воротами. Есть наземная парковка. В помещении: две мокрые точки, отопление котлом, электрическая мощность 52 кВт (с возможностью увеличения). Лифт отсутствует; здание имеет два отдельных входа. Удобное расположение: близко к трём станциям метро — Площадь Восстания (примерно 17 минут на авто), площадь Александра Невского (около 10 минут), Волковская (около 8 минут). Отлично подходит под офисно-логистический центр, базу, сервисный центр или представительство. Арт. 119512074
lock

Войдите или зарегистрируйтесь
для просмотра информации

Просматривайте условия сделки и всю информацию об объекте
Сохраняйте фильтры в поиске и не вводите заново
Доступ к избранному с любого устройства
Неограниченное добавление в избранное
Позвоните автору
Вам ответят на все вопросы
Остались вопросы по объявлению?
Позвоните владельцу объявления и уточните необходимую информацию.
  • Инфраструктура
  • Похожие рядом
Автономное отопление
Помощь надёжных риелторов
Риелтор партнёр Циан поможет купить или продать любую недвижимость
55 000 000 ₽
731 047 $
619 856
Цена за метр
91 211 ₽
Налог
НДС не включен
Документы проверены
На Циан
9 лет
Объектов в работе
34
5,0・10