Мы используем куки-файлы. Соглашение об использовании
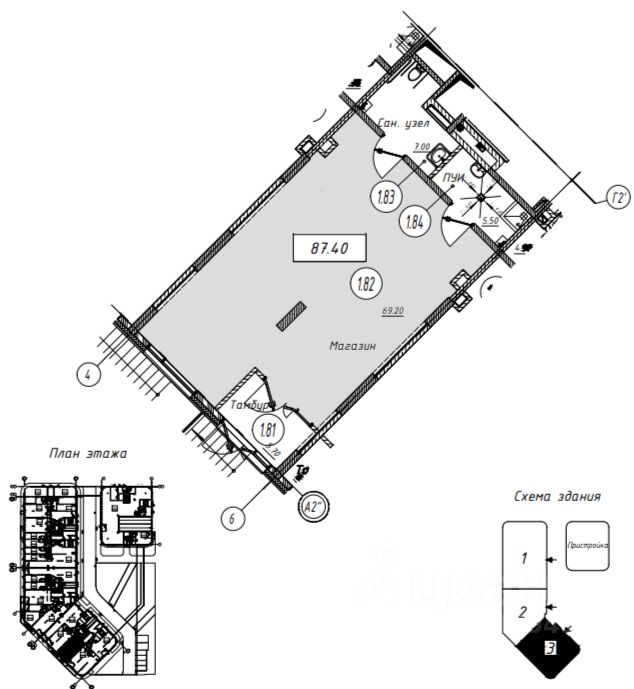
Помещение свободного назначения, 87,4 м²
Площадь87,4 м²
Этаж1 из 12
Отчёт о привлекательности объектаУзнайте, насколько помещение и район подходят для вашего бизнеса
Что входит в отчёт
  • Охват населения
  • Пешеходный трафик
  • Автомобильный трафик
  • Средний бюджет семьи по району
  • Арендные ставки рядом
  • Точки притяжения
  • Конкуренты в радиусе 1 км
  • Рекомендации по выбору места для бизнеса
ПЕРВАЯ ЛИНИЯ ! ОСТАНОВКА трамвая в 30 МЕТРАХ ! В продаже коммерческое помещение 87.4мкв,есть возможность объединения с соседним помещением 84,6мкв . Входная группа и витрины на Старорусский проспект, хороший трафик, рядом в 20 метрах будут расположены автобусная и трамвайные остановки , проход к корпусам Окуловская 18 и Окуловская 13 Старорусский 8. ЖК "Алексеевский квартал" восемь 14 -12 этажных домов комфорт класса в Шушарах , Пушкинский район , Санкт-Петербург. Три здания башенного типа и пять корпусов многосекционные. Строительство ведется в несколько этапов. Участок ограничен улицей Школьная, проспектами Новгородский и Старорусский. Из собственной инфраструктуры в квартале построена школа на 1100 мест с бассейном и стадионом, детский сад, библиотека, читальный зал ,досуговый центр. На первых этажах предусмотрена коммерческая недвижимость: помещения предназначены под размещение аптек, магазинов и кафе, так же открыты салоны красоты , фитнес студии, детские развивающие центры, библиотека, художественная школа и др. Благоустроенные дворы с детскими площадками. Подземные паркинги . Хорошая транспортная доступность , 7 мин транспортом ст.метро Купчино, Звездная, Московская , выезд на КАД , 20 мин. транспортом Пушкин и Павловск. Рядом остановка общественного транспорта и вся необходимая инфраструктура : магазины Пятёрочка, Магнит, Лента, школы, детские сады, поликлиника, почта, Сбербанк, ВТБ, МФЦ .В декабре 2025 г будет запущена линия скоростного трамвая до ст. метро Купчино с остановкой на пересечении Старорусского проспекта и Окуловской улицы.
lock

Войдите или зарегистрируйтесь
для просмотра информации

Просматривайте условия сделки и всю информацию об объекте
Сохраняйте фильтры в поиске и не вводите заново
Доступ к избранному с любого устройства
Неограниченное добавление в избранное
Позвоните автору
Вам ответят на все вопросы
Остались вопросы по объявлению?
Позвоните владельцу объявления и уточните необходимую информацию.
  • Инфраструктура
  • Похожие рядом
  • Общая площадь87,4 м²
Приточная вентиляция
Центральное отопление
Гидрантная система пожаротушения
Помощь надёжных риелторов
Риелтор партнёр Циан поможет купить или продать любую недвижимость
17 980 000 ₽
239 018 $
204 179
Цена за метр
205 721 ₽
Налог
УСН
Агентство недвижимости
Документы проверены