Мы используем куки-файлы. Соглашение об использовании
Площадь183,6 м²
Этаж1 из 5
Отчёт о привлекательности объектаУзнайте, насколько помещение и район подходят для вашего бизнеса
Что входит в отчёт
  • Охват населения
  • Пешеходный трафик
  • Автомобильный трафик
  • Средний бюджет семьи по району
  • Арендные ставки рядом
  • Точки притяжения
  • Конкуренты в радиусе 1 км
  • Рекомендации по выбору места для бизнеса
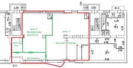
Отличное помещение на первой линии. • Огромные витрины. • Высокая проходимость, помещение находится на местном променаде. • Большой автомобильный трафик. • Обеспеченный район города - Василеостровский. 1 этаж. • 183,6 метров. • Потолки 4,1 м в основных залах (2,3 м в подсобке) . • Электричество официально 40 кВт (и можно увеличить). • Хороший ремонт. • Парковка разрешена. • Есть разгрузочное окно. • Есть место для вывески. Сдано в аренду одному арендатору (он сдает в субаренду магазину Грядка, Белорусские продукты и Столото). Все сетевики. • Соседние помещения в доме занимают Красное и Белое, Аптека, Магнит, они дают дополнительный трафик покупателей. Есть все договора, все чисто, 1 собственник физ лицо, полная стоимость в договоре, никаких подводных камней. • Отличная инвестиция навсегда! Звоните, отвечу на любые вопросы.
lock

Войдите или зарегистрируйтесь
для просмотра информации

Просматривайте условия сделки и всю информацию об объекте
Сохраняйте фильтры в поиске и не вводите заново
Доступ к избранному с любого устройства
Неограниченное добавление в избранное
Позвоните автору
Вам ответят на все вопросы
Остались вопросы по объявлению?
Позвоните владельцу объявления и уточните необходимую информацию.
  • Инфраструктура
  • Похожие рядом
  • Тип зданияЖилой дом
  • Общая площадь183,6 м²
Центральное отопление
Помощь надёжных риелторов
Риелтор партнёр Циан поможет купить или продать любую недвижимость
СобственникID 86715354
  • Предоставил паспорт
43 000 000 ₽
571 622 $
488 304
Цена за метр
234 205 ₽
Налог
УСН
СобственникID 86715354
  • Предоставил паспорт