Мы используем куки-файлы. Соглашение об использовании
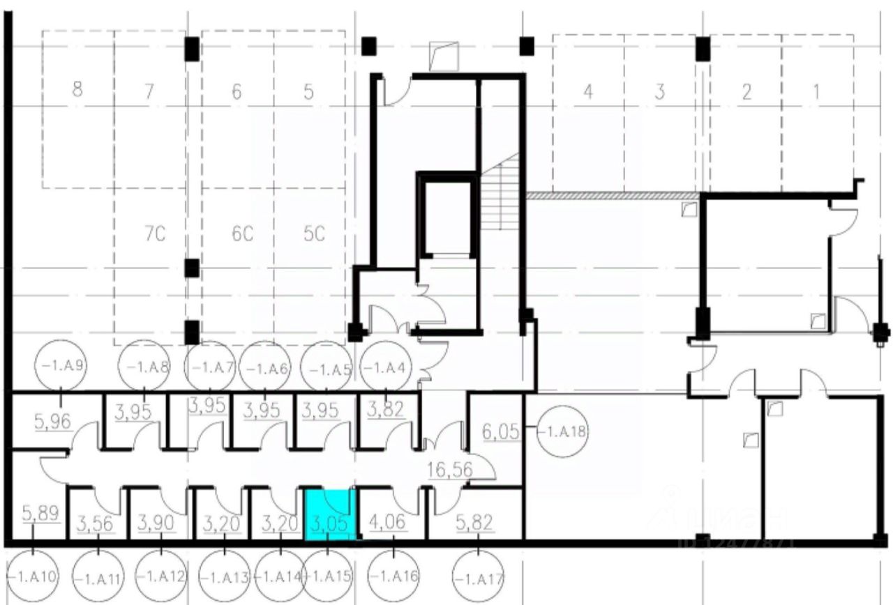
Площадь3,2 м²
Этаж-1 из 9
Отчёт о привлекательности объектаУзнайте, насколько помещение и район подходят для вашего бизнеса
Что входит в отчёт
  • Охват населения
  • Пешеходный трафик
  • Автомобильный трафик
  • Средний бюджет семьи по району
  • Арендные ставки рядом
  • Точки притяжения
  • Конкуренты в радиусе 1 км
  • Рекомендации по выбору места для бизнеса
ID: 832228 Предлагается к продаже коммерческое помещение нежилого фонда, расположенное по адресу: Санкт-Петербург, Василеостровский район, Большой проспект Васильевского острова, дом 67. Объект находится в жилом комплексе бизнес-класса "Большой 67", который отличается развитой инфраструктурой. Общая площадь помещения составляет 3,2 квадратных метра. Помещение оснащено необходимыми коммуникациями: теплоснабжением и электроснабжением. В здании имеется лифт, что обеспечивает удобный доступ. Помещение предназначено для использования в качестве склада или кладовой. Локация объекта удобна благодаря близости станции метро "Горный институт", что обеспечивает хорошую транспортную доступность. Василеостровский район является центральным и востребованным с точки зрения коммерческого использования недвижимости. Объект продается по цене 2,3 миллиона рублей с возможностью оформления в ипотеку. Документы полностью подготовлены для сделки, в договоре будет зафиксирована полная сумма. Для безопасности предусмотрено видеонаблюдение. Предложение подходит для тех, кто ищет компактное и удобное место для хранения личных вещей, велосипедов или сезонных предметов.
lock

Войдите или зарегистрируйтесь
для просмотра информации

Просматривайте условия сделки и всю информацию об объекте
Сохраняйте фильтры в поиске и не вводите заново
Доступ к избранному с любого устройства
Неограниченное добавление в избранное
Позвоните автору
Вам ответят на все вопросы
Остались вопросы по объявлению?
Позвоните владельцу объявления и уточните необходимую информацию.
  • Инфраструктура
  • Похожие рядом
  • Тип зданияЖилой дом
  • Общая площадь3,2 м²
Помощь надёжных риелторов
Риелтор партнёр Циан поможет купить или продать любую недвижимость
2 300 000 ₽
31 171 $
26 323
Цена за метр
718 750 ₽
Налог
НДС включен: 414 754 ₽
Агентство недвижимости
Риелтор
Суперагент